Building Summary

Data last updated on: 4/1/2026     Ownership current as of: 3/27/2026     Tax Year: 2026
REID 149004

PIN # 0729-12-0542

Location Address Property Description
5500 82B FORTUNES RIDGE DR HOMEPLC @ FORTUNE RDG TWN HMS/PH:03/LT#082B TYPE-1 PL:000111-000087
   
Property Owner Owner's Mailing Address
PIOPPO, TIMOTHY PHILIP;ZWONITZER, KENDRA DIANE
150 KLATTENHOFF LN UNIT 7309
HUTTO TX 78634
Parcel
Buildings
Misc Improvements
Land
Deeds
Notes
Sales
Photos
Map
Building Location Address
5500 FORTUNES RIDGE DR
Building Description
TINFR-TWNHS-INT-U-FR
Card   of  1
Bldg Type RESIDENTIAL
Units 1
Living Area (SQFT) 1810
Number of Stories 2.00
Style TWN-TWNHS/ATTC-RW-TP
Foundation 06-BASEMENT
Exterior 01-WOOD-PANEL
Const Type
Heating 05-PACKAGE-HEAT/COOL
Air Cond
Plumbing Baths (Full):   2
Baths (Half):   1
Extra Fixtures:   0
Total Plumbing Fixtures:   8 
Bedrooms 3
Main Body (SQFT) 850
Year Built 1985
Additions 10
Effective Year 1985
Remodeled 0
Interior Adj.
Other Features
Building Total & Improvement Details

Grade B 120%
Percentage Complete 100
Total Adjusted Replacement Cost New $415,785
Physical Depreciation (% Bad) 0%
Depreciated Value $324,312
Economic Depreciation (% Bad) 0%
Functional Depreciation (% Bad) 0%
Total Depreciated Value $324,312
Market Area Factor 1.00
Building Value $324,312
Misc Improvements Value
Total Improvement Value $324,312

Assessed Land Value $75,000
   
Assessed Total Value $399,312



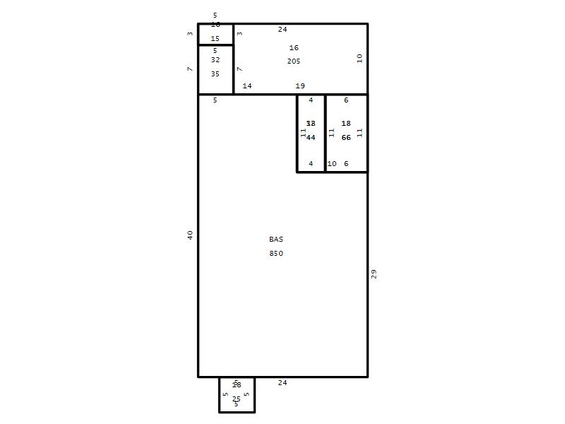
Addition Summary 
StoryTypeCodeArea
1.00 Frame Deck 16 15
1.00 Storage Utility 32 44
1.00 Covered Porch 18 25
1.00 Covered Porch 18 66
1.00 Storage Utility 32 35
1.00 Frame Deck 16 205
1.00 Covered Porch 18 66
1.00 Covered Porch 18 44
1.00 Res Frame 2Nd Flr FR02 960
1.00 Unfinished Basement 10 850
 
Other Improvements 
 


Building Sketch
Photograph
Building Sketch Building Photo
(Click sketch for bigger image)




Copyright © 2022 Durham County, North Carolina.