Building Summary

Data last updated on: 4/1/2026     Ownership current as of: 3/27/2026     Tax Year: 2026
REID 149171

PIN # 0719-92-6057

Location Address Property Description
4111 SETTLEMENT DR HOMEPLC 4 TWNHMS/SEC:05/L T#18 TYPE-18/BN/FY/GN PL:000123-000067
   
Property Owner Owner's Mailing Address
BLACK, ALYSON
4111 SETTLEMENT DR
DURHAM NC 27713
Parcel
Buildings
Misc Improvements
Land
Deeds
Notes
Sales
Photos
Map
Building Location Address
4111 SETTLEMENT DR
Building Description
TINMF-TWNHS-INT-U-MF
Card   of  1
Bldg Type RESIDENTIAL
Units 1
Living Area (SQFT) 1651
Number of Stories 2.00
Style TWN-TWNHS/ATTC-RW-TP
Foundation 04-P-FOOTING/CRWL-SP
Exterior 01-WOOD-PANEL
Const Type
Heating 05-PACKAGE-HEAT/COOL
Air Cond
Plumbing Baths (Full):   2
Baths (Half):   1
Extra Fixtures:   0
Total Plumbing Fixtures:   8 
Bedrooms 3
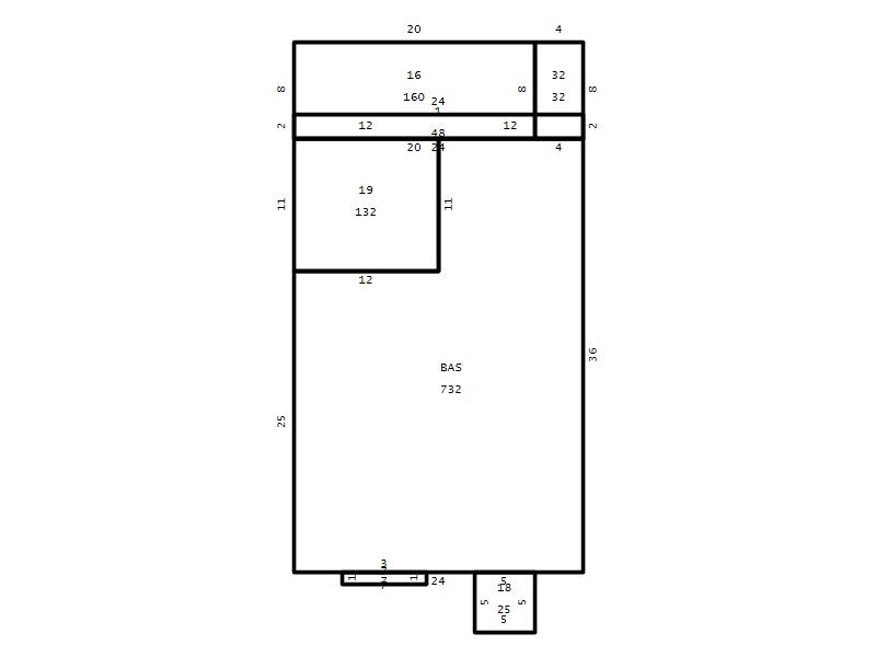
Main Body (SQFT) 732
Year Built 1990
Additions 7
Effective Year 1990
Remodeled 0
Interior Adj.
Other Features
Building Total & Improvement Details

Grade B 120%
Percentage Complete 100
Total Adjusted Replacement Cost New $362,896
Physical Depreciation (% Bad) 0%
Depreciated Value $286,688
Economic Depreciation (% Bad) 0%
Functional Depreciation (% Bad) 0%
Total Depreciated Value $286,688
Market Area Factor 1.00
Building Value $286,688
Misc Improvements Value
Total Improvement Value $286,688

Assessed Land Value $75,000
   
Assessed Total Value $361,688



Addition Summary 
StoryTypeCodeArea
1.00 Overhang 01 48
1.00 Bay Window 03 7
1.00 Frame Deck 16 160
1.00 Covered Porch 18 25
1.00 Screen Porch 19 132
1.00 Storage Utility 32 32
1.00 Res Mas/Frame MF02 864
 
Other Improvements 
 


Building Sketch
Photograph
Building Sketch Building Photo
(Click sketch for bigger image)




Copyright © 2022 Durham County, North Carolina.