Building Summary

Data last updated on: 4/2/2026     Ownership current as of: 3/30/2026     Tax Year: 2026
REID 149258

PIN # 0728-28-9607

Location Address Property Description
2 CASABELLE CT WOODLAKE/SEC:C/PH:02/LT#3 8 PL:000134-000167
   
Property Owner Owner's Mailing Address
BROPHY, TERRENCE WILLIAM;PALERMO, JAMIE MUNRO
2 CASABELLE CT
DURHAM NC 27713
Parcel
Buildings
Misc Improvements
Land
Deeds
Notes
Sales
Photos
Map
Building Location Address
2 CASABELLE CT
Building Description
RESFR-RES-FRM-OR-EQ
Card   of  1
Bldg Type RESIDENTIAL
Units 1
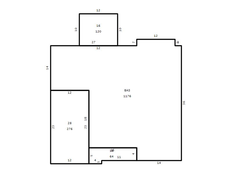
Living Area (SQFT) 1176
Number of Stories 1.00
Style RAN-RANCH
Foundation 04-P-FOOTING/CRWL-SP
Exterior 09-HARD-B/CEMENTBRD
Const Type
Heating 05-PACKAGE-HEAT/COOL
Air Cond
Plumbing Baths (Full):   2
Baths (Half):   0
Extra Fixtures:   0
Total Plumbing Fixtures:   6 
Bedrooms 3
Main Body (SQFT) 1176
Year Built 1996
Additions 3
Effective Year 1996
Remodeled 0
Interior Adj.
Other Features
Building Total & Improvement Details

Grade B+15 135%
Percentage Complete 100
Total Adjusted Replacement Cost New $331,761
Physical Depreciation (% Bad) 0%
Depreciated Value $248,821
Economic Depreciation (% Bad) 0%
Functional Depreciation (% Bad) 0%
Total Depreciated Value $248,821
Market Area Factor 1.00
Building Value $248,821
Misc Improvements Value
Total Improvement Value $248,821

Assessed Land Value $152,100
   
Assessed Total Value $400,921



Addition Summary 
StoryTypeCodeArea
1.00 Frame Deck 16 120
1.00 Covered Porch 18 64
1.00 Garage 28 276
 
Other Improvements 
 


Building Sketch
Photograph
Building Sketch Building Photo
(Click sketch for bigger image)




Copyright © 2022 Durham County, North Carolina.