Building Summary

Data last updated on: 4/2/2026     Ownership current as of: 3/30/2026     Tax Year: 2026
REID 149276

PIN # 0728-38-2539

Location Address Property Description
8 DRUMMOND CT WDLAKE/SEC:C/PH:01/LT#15 PL:000134-000214
   
Property Owner Owner's Mailing Address
BASILIO, ARNEL;BASILIO, MARILYN
5 POWDERHILL PL
DURHAM NC 27707
Parcel
Buildings
Misc Improvements
Land
Deeds
Notes
Sales
Photos
Map
Building Location Address
8 DRUMMOND CT
Building Description
RESFR-RES-FRM-OR-EQ
Card   of  1
Bldg Type RESIDENTIAL
Units 1
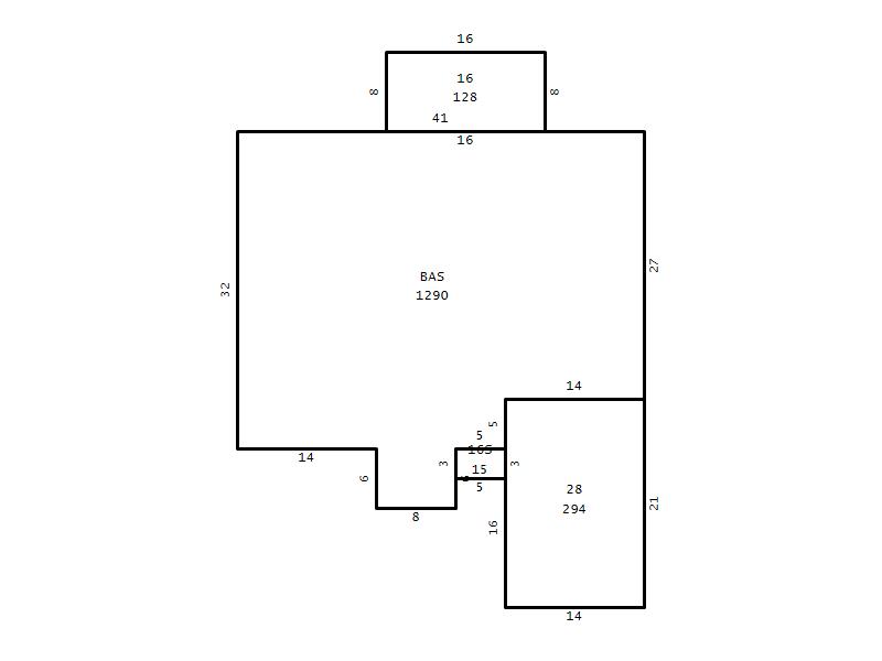
Living Area (SQFT) 1290
Number of Stories 1.00
Style RAN-RANCH
Foundation 04-P-FOOTING/CRWL-SP
Exterior 09-HARD-B/CEMENTBRD
Const Type
Heating 05-PACKAGE-HEAT/COOL
Air Cond
Plumbing Baths (Full):   2
Baths (Half):   0
Extra Fixtures:   0
Total Plumbing Fixtures:   6 
Bedrooms 3
Main Body (SQFT) 1290
Year Built 1997
Additions 3
Effective Year 1997
Remodeled 0
Interior Adj.
Other Features
Building Total & Improvement Details

Grade B+15 135%
Percentage Complete 100
Total Adjusted Replacement Cost New $347,747
Physical Depreciation (% Bad) 0%
Depreciated Value $264,288
Economic Depreciation (% Bad) 0%
Functional Depreciation (% Bad) 0%
Total Depreciated Value $264,288
Market Area Factor 1.00
Building Value $264,288
Misc Improvements Value
Total Improvement Value $264,288

Assessed Land Value $150,800
   
Assessed Total Value $415,088



Addition Summary 
StoryTypeCodeArea
1.00 Frame Deck 16 128
1.00 Stoop 16S 15
1.00 Garage 28 294
 
Other Improvements 
 


Building Sketch
Photograph
Building Sketch Building Photo
(Click sketch for bigger image)




Copyright © 2022 Durham County, North Carolina.