Building Summary

Data last updated on: 4/2/2026     Ownership current as of: 3/30/2026     Tax Year: 2026
REID 149674

PIN # 0718-74-2608

Location Address Property Description
6930 FAYETTEVILLE RD THE STREETS @ SOUTHPOINT/ PARCEL #06 DBA/SEARS DEP PL:000151-000171
   
Property Owner Owner's Mailing Address
FVR NORTH CAROLINA LLC
3131 MCKINNEY AVE STE L10
DALLAS TX 75204

Value subject to change, property assessment under review

Parcel
Buildings
Misc Improvements
Land
Deeds
Notes
Sales
Photos
Map
Building Location Address
6930 FAYETTEVILLE RD
Card   of  1        Section   of  1
Building Details

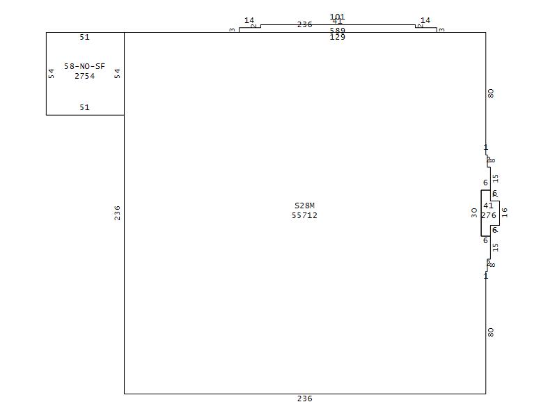
Building Name DEPARTMENT STORE MASONRY
Primary Occupancy Type COMMERCIAL
Primary Occupancy 28M-DEPT-STORE-MAS
Primary Class M
Primary Quality C
Year Built 2001
Effective Year 2001
Physical Depreciation (Rating) CAR-CDU PERCENTAGE
Physical Depreciation (% Bad) 34.00%
Economic Depreciation (% Bad) 75.00%
Functional Depreciation (% Bad) 0%
Gross Leasable Area (SQFT) 111424
Remodeled Year
Total Stories

Section Details

Occupancy Type COMMERCIAL


Class M
50-ELEC-FREIGHT 1
50S-ELV-STOP-COM 6
53-HYDRAULIC-PASSANG 2
54-ESCLATOR 2
Heat 15-HEAT-&-AC-COM
Occupancy 28M-DEPT-STORE-MAS
Quality C
Sprinkler 1-WET-SPRINKLER
Exterior Walls N/A-EXT-WALL
Depreciation 34%
Depreciation CAR-CDU PERCENTAGE
Building Total & Improvement Details

Total Adjusted Replacement Cost New
Physical Depreciation (% Bad) 34.00%
Depreciated Value
Economic Depreciation (% Bad) 75.00%
Functional Depreciation (% Bad) 0%
Total Depreciated Value
Market Area Factor 1.00
Building Value
Misc Improvements Value
Total Improvement Value

Assessed Land Value
   
Assessed Total Value


Addition Summary 
StoryTypeCodeArea
1.00 Canopy Commercial 41 589
1.00 Truck Well No Size 58-N 2754
1.00 Canopy Commercial 41 276
 
Other Improvements 
UnitsDescriptionItemCodeYear% BadValue
218940 SIZE Asphalt Paving 2001 75
 


Building Sketch
Photograph
Building Sketch Building Photo
(Click sketch for bigger image)




Copyright © 2022 Durham County, North Carolina.