Building Summary

Data last updated on: 4/2/2026     Ownership current as of: 3/30/2026     Tax Year: 2026
REID 149844

PIN # 0718-93-7439

Location Address Property Description
6810 SOMERKNOLL DR WYNDCROSS/PH:01A/LT#17 PL:000141-000079
   
Property Owner Owner's Mailing Address
ZHANG, XIANGRU;YANG, LIN
6810 SOMERKNOLL DR
DURHAM NC 27713
Parcel
Buildings
Misc Improvements
Land
Deeds
Notes
Sales
Photos
Map
Building Location Address
6810 SOMERKNOLL DR
Building Description
RESFR-RES-FRM-OR-EQ
Card   of  1
Bldg Type RESIDENTIAL
Units 1
Living Area (SQFT) 2008
Number of Stories 2.00
Style CON-CONVENTIONAL
Foundation 04-P-FOOTING/CRWL-SP
Exterior 08-VINYL/ALUMINUM
Const Type
Heating 05-PACKAGE-HEAT/COOL
Air Cond
Plumbing Baths (Full):   2
Baths (Half):   1
Extra Fixtures:   0
Total Plumbing Fixtures:   8 
Bedrooms 3
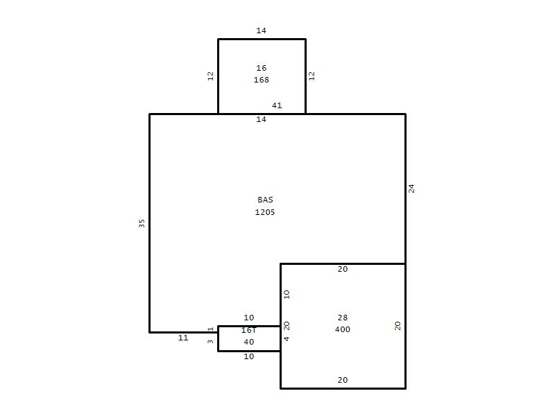
Main Body (SQFT) 1205
Year Built 1999
Additions 5
Effective Year 1999
Remodeled 0
Interior Adj.
Other Features
Building Total & Improvement Details

Grade B 120%
Percentage Complete 100
Total Adjusted Replacement Cost New $421,208
Physical Depreciation (% Bad) 0%
Depreciated Value $349,603
Economic Depreciation (% Bad) 0%
Functional Depreciation (% Bad) 0%
Total Depreciated Value $349,603
Market Area Factor 1.00
Building Value $349,603
Misc Improvements Value
Total Improvement Value $349,603

Assessed Land Value $150,700
   
Assessed Total Value $500,303



Addition Summary 
StoryTypeCodeArea
1.00 Frame Deck 16 168
1.00 Terrace/Raised Patio 16T 40
1.00 Garage 28 400
1.00 Res Frame 2Nd Flr FR02 603
1.00 Res Frm 2Nd Flr Over Garg FR02 200
 
Other Improvements 
 


Building Sketch
Photograph
Building Sketch Building Photo
(Click sketch for bigger image)




Copyright © 2022 Durham County, North Carolina.