Building Summary

Data last updated on: 4/2/2026     Ownership current as of: 3/30/2026     Tax Year: 2026
REID 149849

PIN # 0728-03-0542

Location Address Property Description
6807 WINDING ARCH DR WYNDCROSS/PH:01A/LT#12 PL:000143-000017
   
Property Owner Owner's Mailing Address
PORCHE, BENJAMIN
6807 WINDING ARCH DR
DURHAM NC 27713

Value subject to change, property assessment under review

Parcel
Buildings
Misc Improvements
Land
Deeds
Notes
Sales
Photos
Map
Building Location Address
6807 WINDING ARCH DR
Building Description
RESFR-RES-FRM-OR-EQ
Card   of  1
Bldg Type RESIDENTIAL
Units 1
Living Area (SQFT) 2142
Number of Stories 2.00
Style CON-CONVENTIONAL
Foundation 04-P-FOOTING/CRWL-SP
Exterior 08-VINYL/ALUMINUM
Const Type
Heating 05-PACKAGE-HEAT/COOL
Air Cond
Plumbing Baths (Full):   2
Baths (Half):   1
Extra Fixtures:   0
Total Plumbing Fixtures:   8 
Bedrooms 4
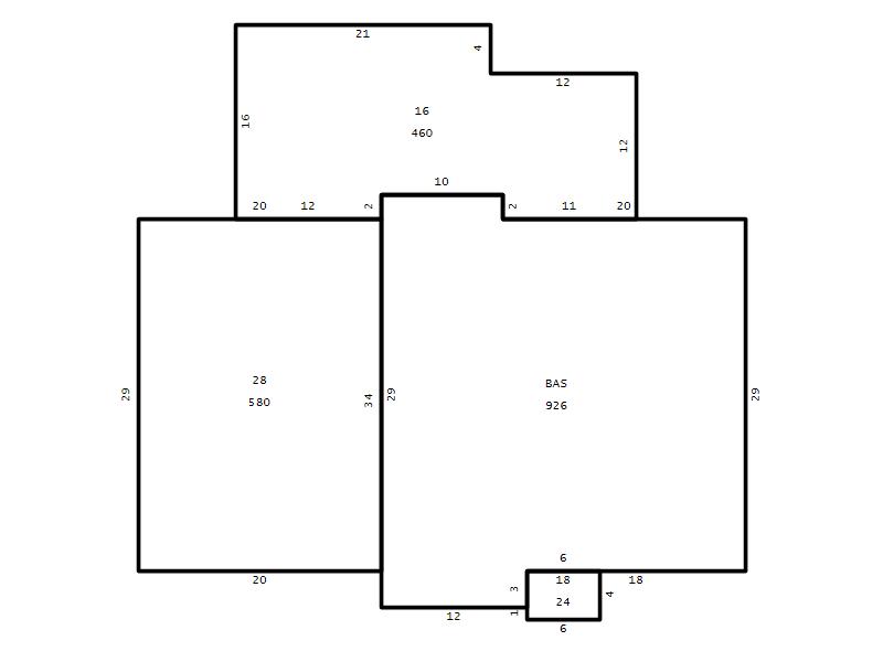
Main Body (SQFT) 926
Year Built 2000
Additions 5
Effective Year 2000
Remodeled 0
Interior Adj.
Other Features
Building Total & Improvement Details

Grade B 120%
Percentage Complete 100
Total Adjusted Replacement Cost New
Physical Depreciation (% Bad) 0%
Depreciated Value
Economic Depreciation (% Bad) 0%
Functional Depreciation (% Bad) 0%
Total Depreciated Value
Market Area Factor 1.00
Building Value
Misc Improvements Value
Total Improvement Value

Assessed Land Value
   
Assessed Total Value



Addition Summary 
StoryTypeCodeArea
1.00 Frame Deck 16 460
1.00 Covered Porch 18 24
1.00 Garage 28 580
1.00 Res Frame 2Nd Flr FR02 926
1.00 Res Frm 2Nd Flr Over Garg FR02 290
 
Other Improvements 
 


Building Sketch
Photograph
Building Sketch Building Photo
(Click sketch for bigger image)




Copyright © 2022 Durham County, North Carolina.