Building Summary

Data last updated on: 4/2/2026     Ownership current as of: 3/30/2026     Tax Year: 2026
REID 149851

PIN # 0728-03-1664

Location Address Property Description
6806 WINDING ARCH DR WYNDCROSS/PH:01A/LT#35 PL:000143-000017
   
Property Owner Owner's Mailing Address
WENDLANDT, BLAIR NICOLE;WEBSTER, JAMES E
6806 WINDING ARCH DR
DURHAM NC 27713
Parcel
Buildings
Misc Improvements
Land
Deeds
Notes
Sales
Photos
Map
Building Location Address
6806 WINDING ARCH DR
Building Description
RESFR-RES-FRM-OR-EQ
Card   of  1
Bldg Type RESIDENTIAL
Units 1
Living Area (SQFT) 1950
Number of Stories 2.00
Style COL-COLONIAL
Foundation 04-P-FOOTING/CRWL-SP
Exterior 08-VINYL/ALUMINUM
Const Type
Heating 05-PACKAGE-HEAT/COOL
Air Cond
Plumbing Baths (Full):   2
Baths (Half):   1
Extra Fixtures:   0
Total Plumbing Fixtures:   8 
Bedrooms 3
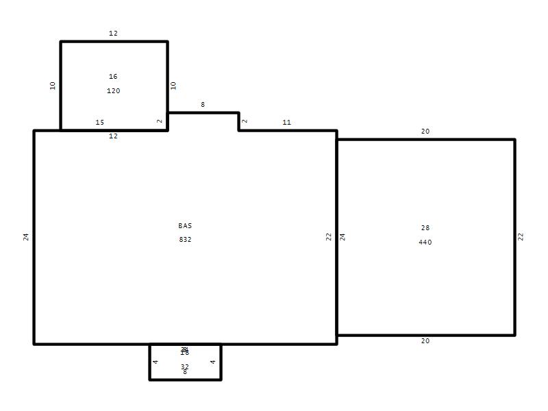
Main Body (SQFT) 832
Year Built 1999
Additions 5
Effective Year 1999
Remodeled 0
Interior Adj.
Other Features
Building Total & Improvement Details

Grade B+10 130%
Percentage Complete 100
Total Adjusted Replacement Cost New $449,584
Physical Depreciation (% Bad) 0%
Depreciated Value $373,155
Economic Depreciation (% Bad) 0%
Functional Depreciation (% Bad) 0%
Total Depreciated Value $373,155
Market Area Factor 1.00
Building Value $373,155
Misc Improvements Value
Total Improvement Value $373,155

Assessed Land Value $129,800
   
Assessed Total Value $502,955



Addition Summary 
StoryTypeCodeArea
1.00 Frame Deck 16 120
1.00 Covered Porch 18 32
1.00 Garage 28 440
1.00 Res Frame 2Nd Flr FR02 816
1.00 Res Frm 2Nd Flr Over Garg FR02 302
 
Other Improvements 
 


Building Sketch
Photograph
Building Sketch Building Photo
(Click sketch for bigger image)




Copyright © 2022 Durham County, North Carolina.