Building Summary

Data last updated on: 4/2/2026     Ownership current as of: 3/30/2026     Tax Year: 2026
REID 149857

PIN # 0728-03-2915

Location Address Property Description
6705 SOMERKNOLL DR WYNDCROSS/PH:01A/LT#29 PL:000143-000017
   
Property Owner Owner's Mailing Address
DELLINGER, TANNER M;DELLINGER, TRUDY
6705 SOMERKNOLL DR
DURHAM NC 27713
Parcel
Buildings
Misc Improvements
Land
Deeds
Notes
Sales
Photos
Map
Building Location Address
6705 SOMERKNOLL DR
Building Description
RESFR-RES-FRM-OR-EQ
Card   of  1
Bldg Type RESIDENTIAL
Units 1
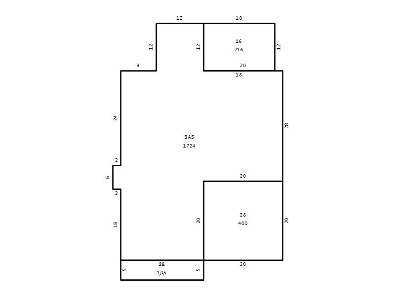
Living Area (SQFT) 3692
Number of Stories 2.00
Style CON-CONVENTIONAL
Foundation 04-P-FOOTING/CRWL-SP
Exterior 08-VINYL/ALUMINUM
Const Type
Heating 05-PACKAGE-HEAT/COOL
Air Cond
Plumbing Baths (Full):   3
Baths (Half):   0
Extra Fixtures:   0
Total Plumbing Fixtures:   9 
Bedrooms 5
Main Body (SQFT) 1724
Year Built 2001
Additions 5
Effective Year 2001
Remodeled 0
Interior Adj.
Other Features
Building Total & Improvement Details

Grade B 120%
Percentage Complete 100
Total Adjusted Replacement Cost New $644,343
Physical Depreciation (% Bad) 0%
Depreciated Value $502,588
Economic Depreciation (% Bad) 0%
Functional Depreciation (% Bad) 0%
Total Depreciated Value $502,588
Market Area Factor 1.00
Building Value $502,588
Misc Improvements Value
Total Improvement Value $502,588

Assessed Land Value $129,800
   
Assessed Total Value $632,388



Addition Summary 
StoryTypeCodeArea
1.00 Frame Deck 16 216
1.00 Garage 28 400
1.00 Frame Deck 16 105
1.00 Res Frame 2Nd Flr FR02 1568
1.00 Res Frm 2Nd Flr Over Garg FR02 400
 
Other Improvements 
 


Building Sketch
Photograph
Building Sketch Building Photo
(Click sketch for bigger image)




Copyright © 2022 Durham County, North Carolina.