Building Summary

Data last updated on: 4/2/2026     Ownership current as of: 3/30/2026     Tax Year: 2026
REID 149867

PIN # 0728-03-7595

Location Address Property Description
6703 WINDING ARCH DR WYNDCROSS/PH:01B/LT#02 PL:000142-000202
   
Property Owner Owner's Mailing Address
SHUEY, WILLIAM T;MORESI, JAMES MICHAEL
6703 WINDING ARCH DR
DURHAM NC 27713
Parcel
Buildings
Misc Improvements
Land
Deeds
Notes
Sales
Photos
Map
Building Location Address
6703 WINDING ARCH DR
Building Description
RESFR-RES-FRM-OR-EQ
Card   of  1
Bldg Type RESIDENTIAL
Units 1
Living Area (SQFT) 1967
Number of Stories 2.00
Style CON-CONVENTIONAL
Foundation 04-P-FOOTING/CRWL-SP
Exterior 08-VINYL/ALUMINUM
Const Type
Heating 05-PACKAGE-HEAT/COOL
Air Cond
Plumbing Baths (Full):   2
Baths (Half):   1
Extra Fixtures:   0
Total Plumbing Fixtures:   8 
Bedrooms 3
Main Body (SQFT) 840
Year Built 2000
Additions 5
Effective Year 2000
Remodeled 0
Interior Adj.
Other Features
Building Total & Improvement Details

Grade B 120%
Percentage Complete 100
Total Adjusted Replacement Cost New $421,391
Physical Depreciation (% Bad) 0%
Depreciated Value $349,755
Economic Depreciation (% Bad) 0%
Functional Depreciation (% Bad) 0%
Total Depreciated Value $349,755
Market Area Factor 1.00
Building Value $349,755
Misc Improvements Value
Total Improvement Value $349,755

Assessed Land Value $144,100
   
Assessed Total Value $493,855



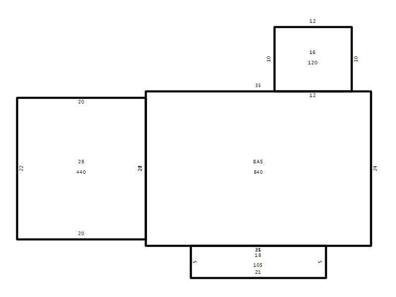
Addition Summary 
StoryTypeCodeArea
1.00 Covered Porch 18 105
1.00 Garage 28 440
1.00 Frame Deck 16 120
1.00 Res Frame 2Nd Flr FR02 840
1.00 Res Frm 2Nd Flr Over Garg FR02 287
 
Other Improvements 
 


Building Sketch
Photograph
Building Sketch Building Photo
(Click sketch for bigger image)




Copyright © 2022 Durham County, North Carolina.