Building Summary

Data last updated on: 4/2/2026     Ownership current as of: 3/30/2026     Tax Year: 2026
REID 149875

PIN # 0728-03-4732

Location Address Property Description
3 GUILDER CV WYNDCROSS/PH:01B/LT#42 PL:000142-000203
   
Property Owner Owner's Mailing Address
RUETER, STEPHEN J;RUETER, KATHARINE D
3 GUILDER CV
DURHAM NC 27713

Value subject to change, property assessment under review

Parcel
Buildings
Misc Improvements
Land
Deeds
Notes
Sales
Photos
Map
Building Location Address
3 GUILDER CV
Building Description
RESFR-RES-FRM-OR-EQ
Card   of  1
Bldg Type RESIDENTIAL
Units 1
Living Area (SQFT) 2436
Number of Stories 2.00
Style COL-COLONIAL
Foundation 04-P-FOOTING/CRWL-SP
Exterior 08-VINYL/ALUMINUM
Const Type
Heating 05-PACKAGE-HEAT/COOL
Air Cond
Plumbing Baths (Full):   2
Baths (Half):   1
Extra Fixtures:   0
Total Plumbing Fixtures:   8 
Bedrooms 3
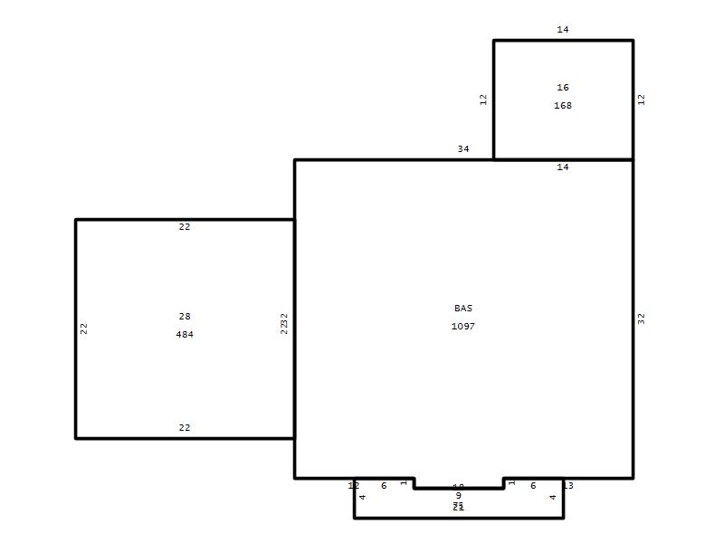
Main Body (SQFT) 1097
Year Built 1999
Additions 5
Effective Year 1999
Remodeled 0
Interior Adj.
Other Features
Building Total & Improvement Details

Grade B 120%
Percentage Complete 100
Total Adjusted Replacement Cost New
Physical Depreciation (% Bad) 0%
Depreciated Value
Economic Depreciation (% Bad) 0%
Functional Depreciation (% Bad) 0%
Total Depreciated Value
Market Area Factor 1.00
Building Value
Misc Improvements Value
Total Improvement Value

Assessed Land Value
   
Assessed Total Value



Addition Summary 
StoryTypeCodeArea
1.00 Frame Deck 16 168
1.00 Covered Porch 18 75
1.00 Garage 28 484
1.00 Res Frame 2Nd Flr FR02 1097
1.00 Res Frm 2Nd Flr Over Garg FR02 242
 
Other Improvements 
 


Building Sketch
Photograph
Building Sketch Building Photo
(Click sketch for bigger image)




Copyright © 2022 Durham County, North Carolina.