Building Summary

Data last updated on: 4/2/2026     Ownership current as of: 3/30/2026     Tax Year: 2026
REID 149891

PIN # 0728-04-3158

Location Address Property Description
6519 CAVERSTONE LN WYNDCROSS/PH:02A/LT#128 PL:000143-000019
   
Property Owner Owner's Mailing Address
KAMER, ANNA;KAMER, AUSTIN
6519 CAVERSTONE LN
DURHAM NC 27713
Parcel
Buildings
Misc Improvements
Land
Deeds
Notes
Sales
Photos
Map
Building Location Address
6519 CAVERSTONE LN
Building Description
RESFR-RES-FRM-OR-EQ
Card   of  1
Bldg Type RESIDENTIAL
Units 1
Living Area (SQFT) 1919
Number of Stories 2.00
Style COL-COLONIAL
Foundation 04-P-FOOTING/CRWL-SP
Exterior 08-VINYL/ALUMINUM
Const Type
Heating 05-PACKAGE-HEAT/COOL
Air Cond
Plumbing Baths (Full):   2
Baths (Half):   1
Extra Fixtures:   0
Total Plumbing Fixtures:   8 
Bedrooms 3
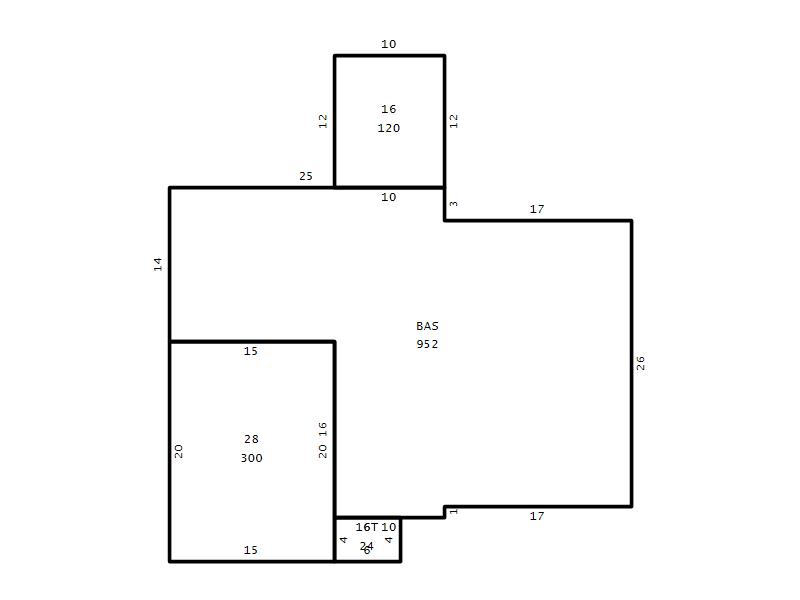
Main Body (SQFT) 952
Year Built 1998
Additions 5
Effective Year 1998
Remodeled 0
Interior Adj.
Other Features
Building Total & Improvement Details

Grade B 120%
Percentage Complete 100
Total Adjusted Replacement Cost New $401,323
Physical Depreciation (% Bad) 0%
Depreciated Value $329,085
Economic Depreciation (% Bad) 0%
Functional Depreciation (% Bad) 0%
Total Depreciated Value $329,085
Market Area Factor 1.00
Building Value $329,085
Misc Improvements Value
Total Improvement Value $329,085

Assessed Land Value $133,100
   
Assessed Total Value $462,185



Addition Summary 
StoryTypeCodeArea
1.00 Frame Deck 16 120
1.00 Terrace/Raised Patio 16T 24
1.00 Garage 28 300
1.00 Res Frame 2Nd Flr FR02 817
1.00 Res Frm 2Nd Flr Over Garg FR02 150
 
Other Improvements 
 


Building Sketch
Photograph
Building Sketch Building Photo
(Click sketch for bigger image)




Copyright © 2022 Durham County, North Carolina.