Building Summary

Data last updated on: 4/2/2026     Ownership current as of: 3/30/2026     Tax Year: 2026
REID 149947

PIN # 0728-15-1023

Location Address Property Description
403 WELLINGHAM DR WYNDCROSS/PH:02B/LT#072 PL:000144-000096
   
Property Owner Owner's Mailing Address
IH3 PROPERTY NORTH CAROLINA LP
PO BOX 4900
SCOTTSDALE AZ 85261
Parcel
Buildings
Misc Improvements
Land
Deeds
Notes
Sales
Photos
Map
Building Location Address
403 WELLINGHAM DR
Building Description
RESFR-RES-FRM-OR-EQ
Card   of  1
Bldg Type RESIDENTIAL
Units 1
Living Area (SQFT) 2784
Number of Stories 2.00
Style CON-CONVENTIONAL
Foundation 04-P-FOOTING/CRWL-SP
Exterior 08-VINYL/ALUMINUM
Const Type
Heating 05-PACKAGE-HEAT/COOL
Air Cond
Plumbing Baths (Full):   2
Baths (Half):   1
Extra Fixtures:   0
Total Plumbing Fixtures:   8 
Bedrooms 3
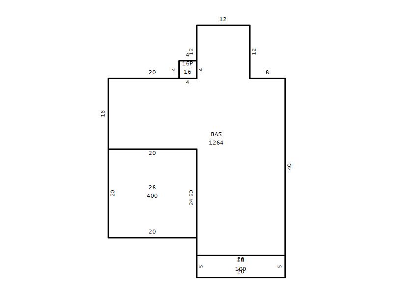
Main Body (SQFT) 1264
Year Built 2000
Additions 5
Effective Year 2000
Remodeled 0
Interior Adj.
Other Features
Building Total & Improvement Details

Grade B 120%
Percentage Complete 100
Total Adjusted Replacement Cost New $508,121
Physical Depreciation (% Bad) 0%
Depreciated Value $391,253
Economic Depreciation (% Bad) 0%
Functional Depreciation (% Bad) 0%
Total Depreciated Value $391,253
Market Area Factor 1.00
Building Value $391,253
Misc Improvements Value
Total Improvement Value $391,253

Assessed Land Value $129,800
   
Assessed Total Value $521,053



Addition Summary 
StoryTypeCodeArea
1.00 Patio 16P 16
1.00 Covered Porch 18 100
1.00 Garage 28 400
1.00 Res Frame 2Nd Flr FR02 1120
1.00 Res Frm 2Nd Flr Over Garg FR02 400
 
Other Improvements 
 


Building Sketch
Photograph
Building Sketch Building Photo
(Click sketch for bigger image)




Copyright © 2022 Durham County, North Carolina.