Building Summary

Data last updated on: 4/2/2026     Ownership current as of: 3/30/2026     Tax Year: 2026
REID 152185

PIN # 0727-39-4351

Location Address Property Description
119 SETTLERS MILL LN SETTLERS MILL/PH:01/LT#13 PL:000126-000111
   
Property Owner Owner's Mailing Address
AHRENDSEN, JOSEPH;LLOYD, ABIGAIL FAITH
119 SETTLERS MILL LN
DURHAM NC 27713
Parcel
Buildings
Misc Improvements
Land
Deeds
Notes
Sales
Photos
Map
Building Location Address
119 SETTLERS MILL LN
Building Description
RESFR-RES-FRM-OR-EQ
Card   of  1
Bldg Type RESIDENTIAL
Units 1
Living Area (SQFT) 1913
Number of Stories 2.00
Style CON-CONVENTIONAL
Foundation 04-P-FOOTING/CRWL-SP
Exterior 09-HARD-B/CEMENTBRD
Const Type
Heating 05-PACKAGE-HEAT/COOL
Air Cond
Plumbing Baths (Full):   3
Baths (Half):   0
Extra Fixtures:   0
Total Plumbing Fixtures:   9 
Bedrooms 3
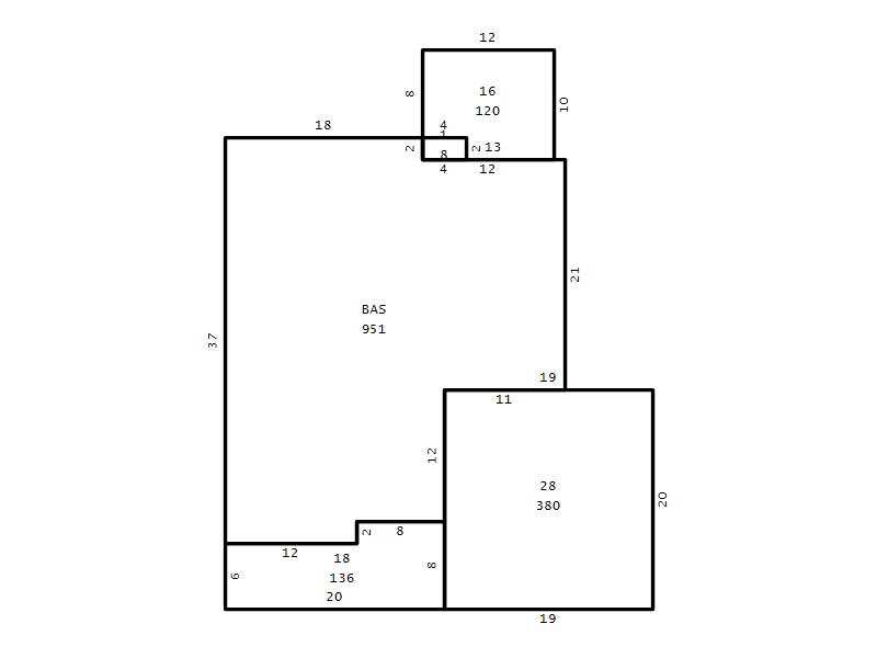
Main Body (SQFT) 951
Year Built 1992
Additions 5
Effective Year 1992
Remodeled 0
Interior Adj.
Other Features
Building Total & Improvement Details

Grade B 120%
Percentage Complete 100
Total Adjusted Replacement Cost New $413,997
Physical Depreciation (% Bad) 0%
Depreciated Value $331,198
Economic Depreciation (% Bad) 0%
Functional Depreciation (% Bad) 0%
Total Depreciated Value $331,198
Market Area Factor 1.00
Building Value $331,198
Misc Improvements Value
Total Improvement Value $331,198

Assessed Land Value $137,600
   
Assessed Total Value $468,798



Addition Summary 
StoryTypeCodeArea
1.00 Overhang 01 8
1.00 Frame Deck 16 120
1.00 Covered Porch 18 136
1.00 Garage 28 380
1.00 Res Frame 2Nd Flr FR02 954
 
Other Improvements 
 


Building Sketch
Photograph
Building Sketch Building Photo
(Click sketch for bigger image)




Copyright © 2022 Durham County, North Carolina.