Building Summary

Data last updated on: 4/2/2026     Ownership current as of: 3/30/2026     Tax Year: 2026
REID 152196

PIN # 0727-39-6686

Location Address Property Description
5 HUCKLEBERRY CT SETTLERS MILL/PH:01/LT#24 PL:000126-000111
   
Property Owner Owner's Mailing Address
ROTHWELL, GAVIN DANIEL;BRENMAN, GABRIELLA RACHEL
5 HUCKLEBERRY CT
DURHAM NC 27713

Value subject to change, property assessment under review

Parcel
Buildings
Misc Improvements
Land
Deeds
Notes
Sales
Photos
Map
Building Location Address
5 HUCKLEBERRY CT
Building Description
RESFR-RES-FRM-OR-EQ
Card   of  1
Bldg Type RESIDENTIAL
Units 1
Living Area (SQFT) 1724
Number of Stories 2.00
Style CON-CONVENTIONAL
Foundation 04-P-FOOTING/CRWL-SP
Exterior 09-HARD-B/CEMENTBRD
Const Type
Heating 05-PACKAGE-HEAT/COOL
Air Cond
Plumbing Baths (Full):   2
Baths (Half):   1
Extra Fixtures:   0
Total Plumbing Fixtures:   8 
Bedrooms 3
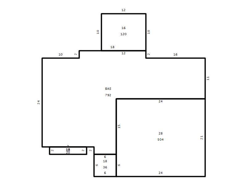
Main Body (SQFT) 792
Year Built 1992
Additions 7
Effective Year 1992
Remodeled 0
Interior Adj.
Other Features
Building Total & Improvement Details

Grade B 120%
Percentage Complete 100
Total Adjusted Replacement Cost New
Physical Depreciation (% Bad) 0%
Depreciated Value
Economic Depreciation (% Bad) 0%
Functional Depreciation (% Bad) 0%
Total Depreciated Value
Market Area Factor 1.00
Building Value
Misc Improvements Value
Total Improvement Value

Assessed Land Value
   
Assessed Total Value



Addition Summary 
StoryTypeCodeArea
1.00 Bay Window 03 20
1.00 Frame Deck 16 120
1.00 Covered Porch 18 36
1.00 Garage 28 504
1.00 Res Frame 2Nd Flr FR02 668
1.00 Res Frm 2Nd Flr Over Garg FR02 240
1.00 Overhang 01 4
 
Other Improvements 
UnitsDescriptionItemCodeYear% BadValue
8x12 DIMENSIONS Shed (Open Pole) 1992 75
 


Building Sketch
Photograph
Building Sketch Building Photo
(Click sketch for bigger image)




Copyright © 2022 Durham County, North Carolina.