Building Summary

Data last updated on: 4/2/2026     Ownership current as of: 3/30/2026     Tax Year: 2026
REID 152214

PIN # 0727-49-9648

Location Address Property Description
1109 SEATON RD SETTLERS MILL/PH:02/LT#42 PL:000129-000015
   
Property Owner Owner's Mailing Address
GORDER, SAMANTHA VAN;WALCOTT, REBECCA L
1109 SEATON RD
DURHAM NC 27713
Parcel
Buildings
Misc Improvements
Land
Deeds
Notes
Sales
Photos
Map
Building Location Address
1109 SEATON RD
Building Description
RESFR-RES-FRM-OR-EQ
Card   of  1
Bldg Type RESIDENTIAL
Units 1
Living Area (SQFT) 2046
Number of Stories 2.00
Style CON-CONVENTIONAL
Foundation 04-P-FOOTING/CRWL-SP
Exterior 09-HARD-B/CEMENTBRD
Const Type
Heating 05-PACKAGE-HEAT/COOL
Air Cond
Plumbing Baths (Full):   2
Baths (Half):   1
Extra Fixtures:   0
Total Plumbing Fixtures:   8 
Bedrooms 3
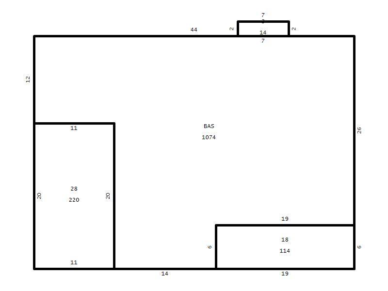
Main Body (SQFT) 1074
Year Built 1997
Additions 5
Effective Year 1997
Remodeled 0
Interior Adj.
Other Features
Building Total & Improvement Details

Grade B 120%
Percentage Complete 100
Total Adjusted Replacement Cost New $414,987
Physical Depreciation (% Bad) 0%
Depreciated Value $315,390
Economic Depreciation (% Bad) 0%
Functional Depreciation (% Bad) 0%
Total Depreciated Value $315,390
Market Area Factor 1.00
Building Value $315,390
Misc Improvements Value
Total Improvement Value $315,390

Assessed Land Value $140,825
   
Assessed Total Value $456,215



Addition Summary 
StoryTypeCodeArea
1.00 Bay Window 03 14
1.00 Covered Porch 18 114
1.00 Garage 28 220
1.00 Res Frame 2Nd Flr FR02 914
1.00 Res Frm 2Nd Flr Over Garg FR02 44
 
Other Improvements 
 


Building Sketch
Photograph
Building Sketch Building Photo
(Click sketch for bigger image)




Copyright © 2022 Durham County, North Carolina.