Building Summary

Data last updated on: 4/2/2026     Ownership current as of: 3/30/2026     Tax Year: 2026
REID 152529

PIN # 0728-30-1376

Location Address Property Description
5007 WINEBERRY DR GRANDALE FOREST/PH:01A/LT #03 PL:000125-000108
   
Property Owner Owner's Mailing Address
GREEN, KERRY;WILSON, ASHLEY
5007 WINEBERRY DR
DURHAM NC 27713
Parcel
Buildings
Misc Improvements
Land
Deeds
Notes
Sales
Photos
Map
Building Location Address
5007 WINEBERRY DR
Building Description
RESFR-RES-FRM-OR-EQ
Card   of  1
Bldg Type RESIDENTIAL
Units 1
Living Area (SQFT) 2546
Number of Stories 2.00
Style CON-CONVENTIONAL
Foundation 04-P-FOOTING/CRWL-SP
Exterior 09-HARD-B/CEMENTBRD
Const Type
Heating 05-PACKAGE-HEAT/COOL
Air Cond
Plumbing Baths (Full):   2
Baths (Half):   1
Extra Fixtures:   0
Total Plumbing Fixtures:   8 
Bedrooms 4
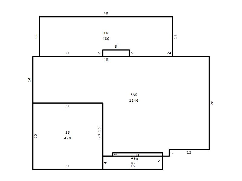
Main Body (SQFT) 1246
Year Built 1991
Additions 5
Effective Year 1991
Remodeled 0
Interior Adj.
Other Features
Building Total & Improvement Details

Grade B 120%
Percentage Complete 100
Total Adjusted Replacement Cost New $500,410
Physical Depreciation (% Bad) 0%
Depreciated Value $435,357
Economic Depreciation (% Bad) 0%
Functional Depreciation (% Bad) 0%
Total Depreciated Value $435,357
Market Area Factor 1.00
Building Value $435,357
Misc Improvements Value
Total Improvement Value $435,357

Assessed Land Value $148,350
   
Assessed Total Value $583,707



Addition Summary 
StoryTypeCodeArea
1.00 Frame Deck 16 480
1.00 Covered Porch 18 87
1.00 Garage 28 420
1.00 Res Frame 2Nd Flr FR02 1105
1.00 Res Frm 2Nd Flr Over Garg FR02 195
 
Other Improvements 
 


Building Sketch
Photograph
Building Sketch Building Photo
(Click sketch for bigger image)




Copyright © 2022 Durham County, North Carolina.