Building Summary

Data last updated on: 4/2/2026     Ownership current as of: 3/30/2026     Tax Year: 2026
REID 152728

PIN # 0728-30-2176

Location Address Property Description
5008 MILLSTONE DR SETTLERS PNT/PH:02/LT#18 PL:000138-000212
   
Property Owner Owner's Mailing Address
SIVADANAM, UDAYA SEKHAR;SIVADANAM, SUJATHA
5008 MILLSTONE DR
DURHAM NC 27713
Parcel
Buildings
Misc Improvements
Land
Deeds
Notes
Sales
Photos
Map
Building Location Address
5008 MILLSTONE DR
Building Description
RESFR-RES-FRM-OR-EQ
Card   of  1
Bldg Type RESIDENTIAL
Units 1
Living Area (SQFT) 1792
Number of Stories 2.00
Style CON-CONVENTIONAL
Foundation 04-P-FOOTING/CRWL-SP
Exterior 09-HARD-B/CEMENTBRD
Const Type
Heating 05-PACKAGE-HEAT/COOL
Air Cond
Plumbing Baths (Full):   3
Baths (Half):   0
Extra Fixtures:   0
Total Plumbing Fixtures:   9 
Bedrooms 4
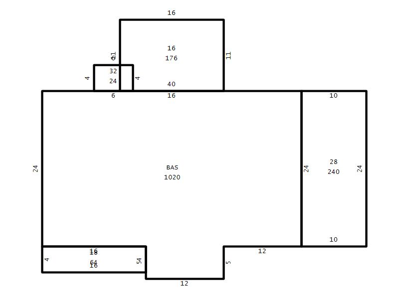
Main Body (SQFT) 1020
Year Built 1999
Additions 7
Effective Year 1999
Remodeled 0
Interior Adj.
Other Features
Building Total & Improvement Details

Grade B-10 110%
Percentage Complete 100
Total Adjusted Replacement Cost New $355,867
Physical Depreciation (% Bad) 0%
Depreciated Value $274,018
Economic Depreciation (% Bad) 0%
Functional Depreciation (% Bad) 0%
Total Depreciated Value $274,018
Market Area Factor 1.00
Building Value $274,018
Misc Improvements Value
Total Improvement Value $274,018

Assessed Land Value $132,225
   
Assessed Total Value $406,243



Addition Summary 
StoryTypeCodeArea
1.00 Frame Deck 16 176
1.00 Covered Porch 18 64
1.00 Garage 28 240
1.00 Storage Utility 32 24
1.00 Res Frame 2Nd Flr FR02 684
1.00 Overhang 01 56
1.00 Overhang 01 32
 
Other Improvements 
 


Building Sketch
Photograph
Building Sketch Building Photo
(Click sketch for bigger image)




Copyright © 2022 Durham County, North Carolina.