Building Summary

Data last updated on: 4/2/2026     Ownership current as of: 3/30/2026     Tax Year: 2026
REID 152738

PIN # 0727-29-9373

Location Address Property Description
6014 MILLSTONE DR SETTLERS PNT/PH:02/LT#28 PL:000138-000212
   
Property Owner Owner's Mailing Address
MELOTT, BROOKE;MELOTT, NICHOLAS
6014 MILLSTONE DR
DURHAM NC 27713
Parcel
Buildings
Misc Improvements
Land
Deeds
Notes
Sales
Photos
Map
Building Location Address
6014 MILLSTONE DR
Building Description
RESFR-RES-FRM-OR-EQ
Card   of  1
Bldg Type RESIDENTIAL
Units 1
Living Area (SQFT) 1803
Number of Stories 2.00
Style CON-CONVENTIONAL
Foundation 04-P-FOOTING/CRWL-SP
Exterior 09-HARD-B/CEMENTBRD
Const Type
Heating 05-PACKAGE-HEAT/COOL
Air Cond
Plumbing Baths (Full):   2
Baths (Half):   1
Extra Fixtures:   0
Total Plumbing Fixtures:   8 
Bedrooms 4
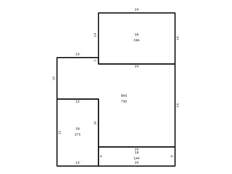
Main Body (SQFT) 793
Year Built 1998
Additions 6
Effective Year 1998
Remodeled 0
Interior Adj.
Other Features
Building Total & Improvement Details

Grade B 120%
Percentage Complete 100
Total Adjusted Replacement Cost New $399,470
Physical Depreciation (% Bad) 0%
Depreciated Value $303,597
Economic Depreciation (% Bad) 0%
Functional Depreciation (% Bad) 0%
Total Depreciated Value $303,597
Market Area Factor 1.00
Building Value $303,597
Misc Improvements Value
Total Improvement Value $303,597

Assessed Land Value $168,775
   
Assessed Total Value $472,372



Addition Summary 
StoryTypeCodeArea
1.00 Frame Deck 16 384
1.00 Covered Porch 18 144
1.00 Garage 28 273
1.00 Res Frame 2Nd Flr FR02 767
1.00 Res Frm 2Nd Flr Over Garg FR02 195
1.00 Overhang 01 48
 
Other Improvements 
 


Building Sketch
Photograph
Building Sketch Building Photo
(Click sketch for bigger image)




Copyright © 2022 Durham County, North Carolina.