Building Summary

Data last updated on: 5/4/2026     Ownership current as of: 4/28/2026     Tax Year: 2026
REID 155121

PIN # 0738-17-8727

Location Address Property Description
4210 NC 55 HWY PROP-PAGE W S ESTATE/BLK: D/LT#31-33 INCL DBA/KIDS PL:00018A-000137
   
Property Owner Owner's Mailing Address
ZHAO, HAN;PAN, SUJUAN
4210 NC 55 HWY
DURHAM NC 27713
Parcel
Buildings
Misc Improvements
Land
Deeds
Notes
Sales
Photos
Map
Building Location Address
4210 NC 55 HWY
Card   of  1        Section   of  1
Building Details

Building Name DAY CARE CENTER WOOD
Primary Occupancy Type COMMERCIAL
Primary Occupancy 27W-DAY-CARE-CTR-WD
Primary Class W
Primary Quality C-20
Year Built 1969
Effective Year 1969
Physical Depreciation (Rating) CAW-CDU PERCENTAGE
Physical Depreciation (% Bad) 55.00%
Economic Depreciation (% Bad) 0%
Functional Depreciation (% Bad) 0%
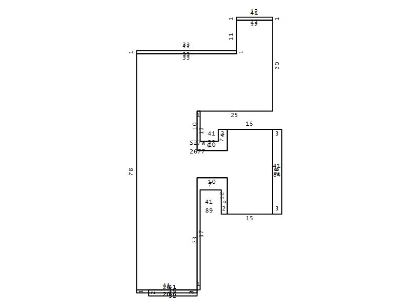
Gross Leasable Area (SQFT) 2677
Remodeled Year
Total Stories

Section Details

Occupancy Type COMMERCIAL


Occupancy 27W-DAY-CARE-CTR-WD
Quality C-20
Exterior Walls N/A-EXT-WALL
Class W
Depreciation 55%
Depreciation CAW-CDU PERCENTAGE
Heat 15-HEAT-&-AC-COM
Building Total & Improvement Details

Total Adjusted Replacement Cost New $351,195
Physical Depreciation (% Bad) 55.00%
Depreciated Value $158,038
Economic Depreciation (% Bad) 0%
Functional Depreciation (% Bad) 0%
Total Depreciated Value $158,038
Market Area Factor 1.00
Building Value $158,038
Misc Improvements Value $1,937
Total Improvement Value $159,975

Assessed Land Value $140,400
   
Assessed Total Value $300,375


Addition Summary 
StoryTypeCodeArea
1.00 Canopy Commercial 41 32
1.00 Canopy Commercial 41 20
1.00 Canopy Commercial 41 89
1.00 Canopy Commercial 41 33
1.00 Canopy Commercial 41 84
1.00 Canopy Commercial 41 52
1.00 Canopy Commercial 41 12
 
Other Improvements 
UnitsDescriptionItemCodeYear% BadValue
298 SIZE Fence, Wood 6' 1980 75 1937
 


Building Sketch
Photograph
Building Sketch Building Photo
(Click sketch for bigger image)




Copyright © 2022 Durham County, North Carolina.