Building Summary

Data last updated on: 12/23/2025     Ownership current as of: 11/7/2025     Tax Year: 2025
REID 105632

PIN # 0832-02-6485

Location Address Property Description
1415 GLENDALE AVE PROP-RICE JOYCE&BILLEAUD EMILEE/WEAVER FAMILY/LT#1 PL:000198-000181
   
Property Owner Owner's Mailing Address
ABARBANEL, CARLY R
2618 W KNOX ST B
DURHAM NC 27705
Parcel
Buildings
Misc Improvements
Land
Deeds
Notes
Sales
Photos
Map
Building Location Address
1415 GLENDALE AVE
Building Description
RESMS-RES-MS-OR-EQ
Card   of  1
Bldg Type RESIDENTIAL
Units 1
Living Area (SQFT) 1107
Number of Stories 1.00
Style RAN-RANCH
Foundation 04-P-FOOTING/CRWL-SP
Exterior 02-BRICK
Const Type
Heating 05-PACKAGE-HEAT/COOL
Air Cond
Plumbing Baths (Full):   2
Baths (Half):   1
Extra Fixtures:   0
Total Plumbing Fixtures:   8 
Bedrooms 2
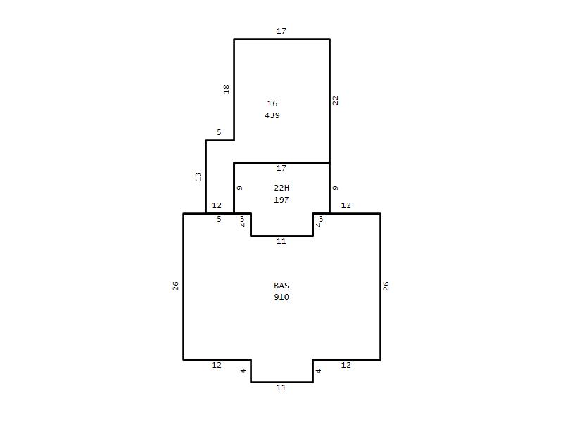
Main Body (SQFT) 910
Year Built 1948
Additions 2
Effective Year 1948
Remodeled 0
Interior Adj.
Other Features
Building Total & Improvement Details

Grade B 120%
Percentage Complete 100
Total Adjusted Replacement Cost New $271,420
Physical Depreciation (% Bad) 0%
Depreciated Value $230,707
Economic Depreciation (% Bad) 0%
Functional Depreciation (% Bad) 0%
Total Depreciated Value $230,707
Market Area Factor 1.00
Building Value $230,707
Misc Improvements Value $148
Total Improvement Value $230,855

Assessed Land Value $263,625
   
Assessed Total Value $494,480



Addition Summary 
StoryTypeCodeArea
1.00 Frame Deck 16 439
1.00 22H-ENCLOSED-PORCH 22H 197
 
Other Improvements 
UnitsDescriptionItemCodeYear% BadValue
8x8 DIMENSIONS Shed (Open Pole) 1977 75 148
8x8 DIMENSIONS Shed Personal Property 2006 75
 


Building Sketch
Photograph
Building Sketch Building Photo
(Click sketch for bigger image)




Copyright © 2022 Durham County, North Carolina.