Building Summary

Data last updated on: 12/22/2025     Ownership current as of: 11/7/2025     Tax Year: 2025
REID 105648

PIN # 0832-02-0487

Location Address Property Description
411 W MARKHAM AVE PROP-CITY OF DURHAM/LT#02 PL:000030-000008
   
Property Owner Owner's Mailing Address
MAYWOOD STREET APARTMENTS LLC
7229 MEADOW RUN LN
CHARLOTTE NC 28277
Parcel
Buildings
Misc Improvements
Land
Deeds
Notes
Sales
Photos
Map
Building Location Address
411 W MARKHAM AVE
Building Description
MULMS-BLT-2/3-MLT-MS
Card   of  1
Bldg Type RESIDENTIAL
Units 1
Living Area (SQFT) 3944
Number of Stories 1.00
Style SEM-S-DTCH-VERT-SPLT
Foundation 06-BASEMENT
Exterior 02-BRICK
Const Type
Heating 05-PACKAGE-HEAT/COOL
Air Cond
Plumbing Baths (Full):   4
Baths (Half):   2
Extra Fixtures:   1
Total Plumbing Fixtures:   17 
Bedrooms 9
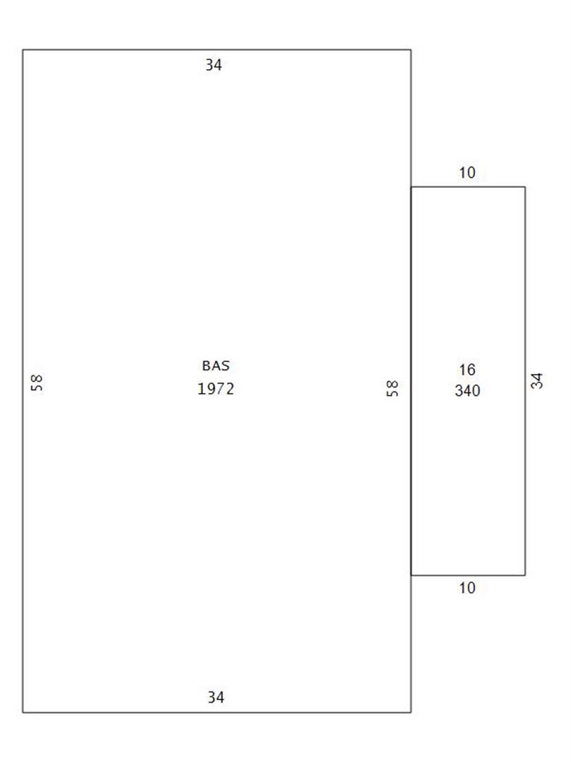
Main Body (SQFT) 1972
Year Built 1961
Additions 2
Effective Year 1961
Remodeled 0
Interior Adj.
Other Features
Building Total & Improvement Details

Grade B+5 125%
Percentage Complete 100
Total Adjusted Replacement Cost New $625,519
Physical Depreciation (% Bad) 0%
Depreciated Value $406,587
Economic Depreciation (% Bad) 0%
Functional Depreciation (% Bad) 0%
Total Depreciated Value $406,587
Market Area Factor 1.00
Building Value $406,587
Misc Improvements Value
Total Improvement Value $406,587

Assessed Land Value $289,750
   
Assessed Total Value $696,337



Addition Summary 
StoryTypeCodeArea
1.00 Frame Deck 16 340
1.00 Finished Basement 14 1972
 
Other Improvements 
 


Building Sketch
Photograph
Building Sketch Building Photo
(Click sketch for bigger image)




Copyright © 2022 Durham County, North Carolina.