Building Summary

Data last updated on: 4/3/2026     Ownership current as of: 3/30/2026     Tax Year: 2026
REID 105711

PIN # 0832-04-6575

Location Address Property Description
1913 GLENDALE AVE GLENDALE HEIGHTS RESUB/LT #08/09 N/PT PL:000015-000075
   
Property Owner Owner's Mailing Address
HUDSON, JESSICA
1913 GLENDALE AVE
DURHAM NC 27701
Parcel
Buildings
Misc Improvements
Land
Deeds
Notes
Sales
Photos
Map
Building Location Address
1913 GLENDALE AVE
Building Description
RESFR-RES-FRM-OR-EQ
Card   of  1
Bldg Type RESIDENTIAL
Units 1
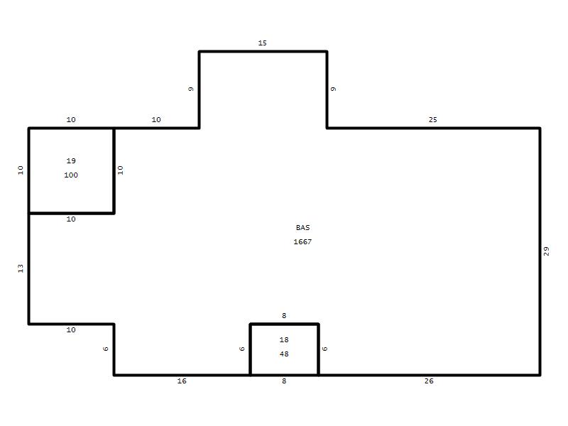
Living Area (SQFT) 1667
Number of Stories 1.00
Style RAN-RANCH
Foundation 04-P-FOOTING/CRWL-SP
Exterior 09-HARD-B/CEMENTBRD
Const Type
Heating 05-PACKAGE-HEAT/COOL
Air Cond
Plumbing Baths (Full):   2
Baths (Half):   0
Extra Fixtures:   0
Total Plumbing Fixtures:   6 
Bedrooms 3
Main Body (SQFT) 1667
Year Built 1953
Additions 3
Effective Year 1953
Remodeled 0
Interior Adj.
Other Features
Building Total & Improvement Details

Grade C+20 120%
Percentage Complete 100
Total Adjusted Replacement Cost New $403,815
Physical Depreciation (% Bad) 0%
Depreciated Value $222,098
Economic Depreciation (% Bad) 0%
Functional Depreciation (% Bad) 0%
Total Depreciated Value $222,098
Market Area Factor 1.00
Building Value $222,098
Misc Improvements Value $3,012
Total Improvement Value $225,110

Assessed Land Value $330,125
   
Assessed Total Value $555,235



Addition Summary 
StoryTypeCodeArea
1.00 Covered Porch 18 48
1.00 Screen Porch 19 100
1.00 Recreation Room 12 808
 
Other Improvements 
UnitsDescriptionItemCodeYear% BadValue
560 SIZE Deck 1953 75 2758
8x14 DIMENSIONS Shed (Open Pole) 1953 75 254
 


Building Sketch
Photograph
Building Sketch Building Photo
(Click sketch for bigger image)




Copyright © 2022 Durham County, North Carolina.