Building Summary

Data last updated on: 4/3/2026     Ownership current as of: 3/30/2026     Tax Year: 2026
REID 105730

PIN # 0832-03-9905

Location Address Property Description
1814 GLENDALE AVE PROP-DUKE B L NORTH DURHA M/BLK:38/LT#05 PTP PL:00005B-000103
   
Property Owner Owner's Mailing Address
NORRIS, COOPER TALMAGE;BELL, JONATHAN CHRISTIAN
1814 GLENDALE AVE
DURHAM NC 27701
Parcel
Buildings
Misc Improvements
Land
Deeds
Notes
Sales
Photos
Map
Building Location Address
1814 GLENDALE AVE
Building Description
RESMS-RES-MS-OR-EQ
Card   of  1
Bldg Type RESIDENTIAL
Units 1
Living Area (SQFT) 1484
Number of Stories 2.00
Style CAP-CAPE-COD
Foundation 06-BASEMENT
Exterior 02-BRICK
Const Type
Heating 05-PACKAGE-HEAT/COOL
Air Cond
Plumbing Baths (Full):   1
Baths (Half):   1
Extra Fixtures:   0
Total Plumbing Fixtures:   5 
Bedrooms 3
Main Body (SQFT) 800
Year Built 1950
Additions 7
Effective Year 1950
Remodeled 0
Interior Adj.
Other Features
Building Total & Improvement Details

Grade B 120%
Percentage Complete 100
Total Adjusted Replacement Cost New $374,244
Physical Depreciation (% Bad) 0%
Depreciated Value $205,834
Economic Depreciation (% Bad) 0%
Functional Depreciation (% Bad) 0%
Total Depreciated Value $205,834
Market Area Factor 1.00
Building Value $205,834
Misc Improvements Value $139
Total Improvement Value $205,973

Assessed Land Value $342,000
   
Assessed Total Value $547,973



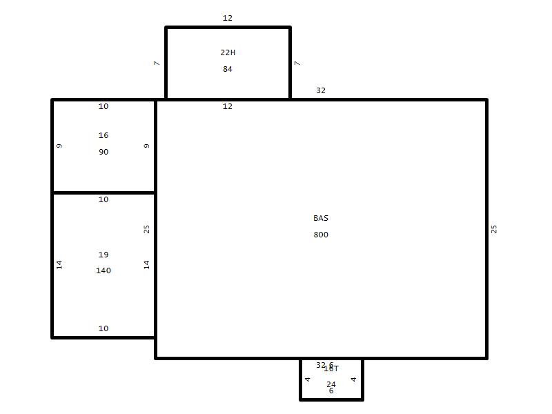
Addition Summary 
StoryTypeCodeArea
1.00 Frame Deck 16 90
1.00 Terrace/Raised Patio 16T 24
1.00 Screen Porch 19 140
1.00 22H-ENCLOSED-PORCH 22H 84
1.00 Unfinished Basement 10 800
1.00 Res Mas 2Nd Flr MS02 600
1.00 Basement Garage BG 1
 
Other Improvements 
UnitsDescriptionItemCodeYear% BadValue
6x10 DIMENSIONS Shed (Open Pole) 1950 75 139
 


Building Sketch
Photograph
Building Sketch Building Photo
(Click sketch for bigger image)




Copyright © 2022 Durham County, North Carolina.