Building Summary

Data last updated on: 4/3/2026     Ownership current as of: 3/30/2026     Tax Year: 2026
REID 157103

PIN # 0739-32-6761

Location Address Property Description
3637 S ALSTON AVE PROP-EVANS LUDELLA H/LT#0 1 PL:000201-000090
   
Property Owner Owner's Mailing Address
LEJO VENTURES LLC
3633 S ALSTON AVE
DURHAM NC 27713
Parcel
Buildings
Misc Improvements
Land
Deeds
Notes
Sales
Photos
Map
Building Location Address
3637 S ALSTON AVE
Building Description
RESMS-RES-MS-OR-EQ
Card   of  1
Bldg Type RESIDENTIAL
Units 1
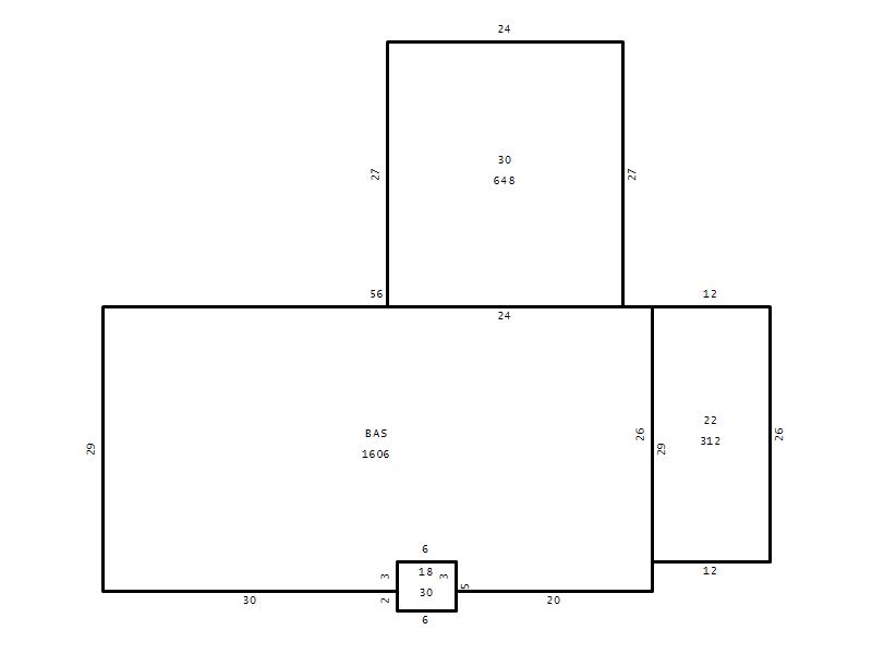
Living Area (SQFT) 1606
Number of Stories 1.00
Style RAN-RANCH
Foundation 06-BASEMENT
Exterior 02-BRICK
Const Type
Heating 05-PACKAGE-HEAT/COOL
Air Cond
Plumbing Baths (Full):   2
Baths (Half):   0
Extra Fixtures:   0
Total Plumbing Fixtures:   6 
Bedrooms 3
Main Body (SQFT) 1606
Year Built 1955
Additions 5
Effective Year 1955
Remodeled 0
Interior Adj.
Other Features
Building Total & Improvement Details

Grade C 100%
Percentage Complete 100
Total Adjusted Replacement Cost New $355,545
Physical Depreciation (% Bad) 0%
Depreciated Value $142,218
Economic Depreciation (% Bad) 0%
Functional Depreciation (% Bad) 0%
Total Depreciated Value $142,218
Market Area Factor 1.00
Building Value $142,218
Misc Improvements Value
Total Improvement Value $142,218

Assessed Land Value $172,750
   
Assessed Total Value $314,968



Addition Summary 
StoryTypeCodeArea
1.00 Covered Porch 18 30
1.00 Enclosed Porch 22 312
1.00 Carport 30 648
1.00 Basement Garage BG 1
1.00 Unfinished Basement 10 700
 
Other Improvements 
UnitsDescriptionItemCodeYear% BadValue
8x6 DIMENSIONS Shed Personal Property 1992 75
12x8 DIMENSIONS Shed Personal Property 1992 75
 


Building Sketch
Photograph
Building Sketch Building Photo
(Click sketch for bigger image)




Copyright © 2022 Durham County, North Carolina.