Building Summary

Data last updated on: 4/3/2026     Ownership current as of: 3/30/2026     Tax Year: 2026
REID 157151

PIN # 0738-37-1607

Location Address Property Description
4211 S ALSTON AVE PROP-SNEED CHARLES & WIFE LAUREL/E/S S ALSTON AVE PL:000000-000000
   
Property Owner Owner's Mailing Address
MOSIER, SARAH
2530 ERWIN RD
DURHAM NC 27705
Parcel
Buildings
Misc Improvements
Land
Deeds
Notes
Sales
Photos
Map
Building Location Address
4211 S ALSTON AVE
Building Description
RESFR-RES-FRM-OR-EQ
Card   of  1
Bldg Type RESIDENTIAL
Units 1
Living Area (SQFT) 1998
Number of Stories 2.00
Style COL-COLONIAL
Foundation 04-P-FOOTING/CRWL-SP
Exterior 09-HARD-B/CEMENTBRD
Const Type
Heating 02-RAD/ELEC/BB/WATR
Air Cond
Plumbing Baths (Full):   1
Baths (Half):   1
Extra Fixtures:   0
Total Plumbing Fixtures:   5 
Bedrooms 3
Main Body (SQFT) 999
Year Built 1928
Additions 5
Effective Year 1928
Remodeled 0
Interior Adj.
Other Features
Building Total & Improvement Details

Grade C+10 110%
Percentage Complete 100
Total Adjusted Replacement Cost New $341,760
Physical Depreciation (% Bad) 0%
Depreciated Value $187,968
Economic Depreciation (% Bad) 0%
Functional Depreciation (% Bad) 0%
Total Depreciated Value $187,968
Market Area Factor 1.00
Building Value $187,968
Misc Improvements Value
Total Improvement Value $187,968

Assessed Land Value $200,750
   
Assessed Total Value $388,718



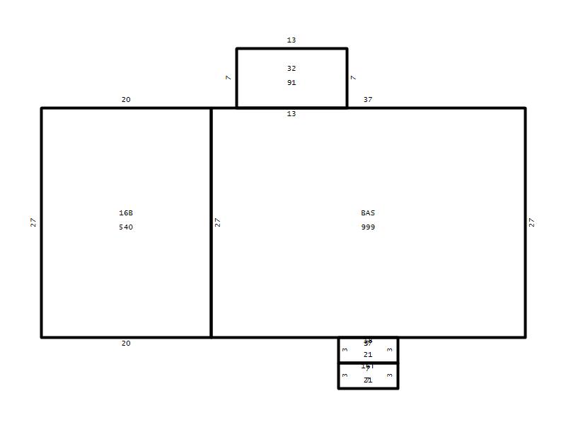
Addition Summary 
StoryTypeCodeArea
1.00 Concrete Slab 16B 540
1.00 Terrace/Raised Patio 16T 21
1.00 Covered Porch 18 21
1.00 Storage Utility 32 91
1.00 Res Frame 2Nd Flr FR02 999
 
Other Improvements 
UnitsDescriptionItemCodeYear% BadValue
8x8 DIMENSIONS Shed Personal Property 2002 75
 


Building Sketch
Photograph
Building Sketch Building Photo
(Click sketch for bigger image)




Copyright © 2022 Durham County, North Carolina.