Building Summary

Data last updated on: 3/31/2026     Ownership current as of: 3/26/2026     Tax Year: 2026
REID 157560

PIN # 0759-41-5276

Location Address Property Description
1814 SHIVA CT PAGEHURST/PH:03A/LT#34 PL:000152-000163
   
Property Owner Owner's Mailing Address
TROYON, LUKE NATHANIEL;TROYON, CHRISTIANA
1814 SHIVA CT
DURHAM NC 27703
Parcel
Buildings
Misc Improvements
Land
Deeds
Notes
Sales
Photos
Map
Building Location Address
1814 SHIVA CT
Building Description
RESFR-RES-FRM-OR-EQ
Card   of  1
Bldg Type RESIDENTIAL
Units 1
Living Area (SQFT) 1766
Number of Stories 1.00
Style BTS-BI/TRI/SPLT-LEVL
Foundation 04-P-FOOTING/CRWL-SP
Exterior 08-VINYL/ALUMINUM
Const Type
Heating 05-PACKAGE-HEAT/COOL
Air Cond
Plumbing Baths (Full):   3
Baths (Half):   0
Extra Fixtures:   0
Total Plumbing Fixtures:   9 
Bedrooms 3
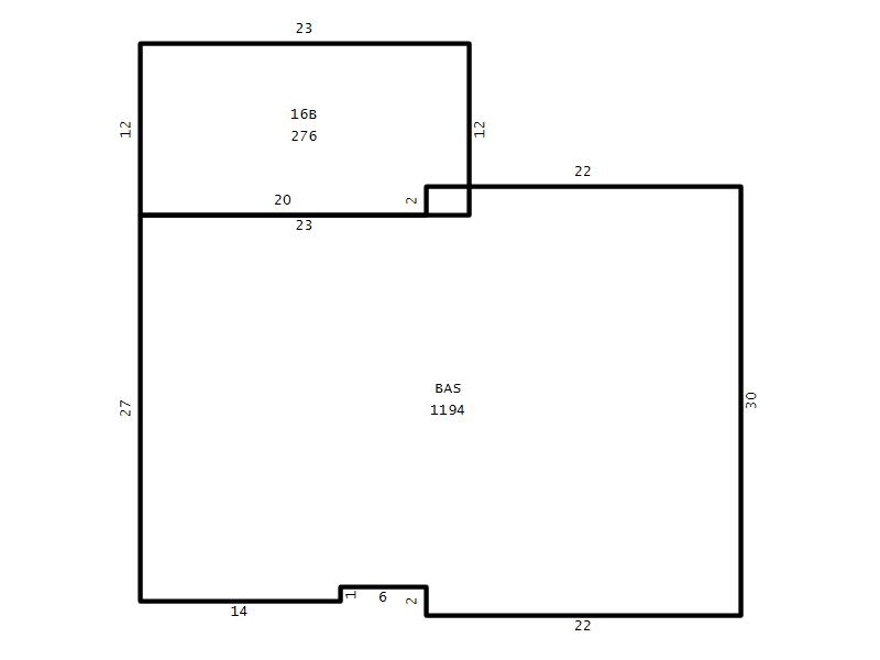
Main Body (SQFT) 1194
Year Built 2002
Additions 2
Effective Year 2002
Remodeled 0
Interior Adj.
Other Features
Building Total & Improvement Details

Grade C 100%
Percentage Complete 100
Total Adjusted Replacement Cost New $291,923
Physical Depreciation (% Bad) 0%
Depreciated Value $262,731
Economic Depreciation (% Bad) 0%
Functional Depreciation (% Bad) 0%
Total Depreciated Value $262,731
Market Area Factor 1.00
Building Value $262,731
Misc Improvements Value $871
Total Improvement Value $263,602

Assessed Land Value $119,700
   
Assessed Total Value $383,302



Addition Summary 
StoryTypeCodeArea
1.00 Concrete Slab 16B 276
1.00 Lower Living Area LL 572
 
Other Improvements 
UnitsDescriptionItemCodeYear% BadValue
8x10 DIMENSIONS Storage Building 2014 55 871
 


Building Sketch
Photograph
Building Sketch Building Photo
(Click sketch for bigger image)




Copyright © 2022 Durham County, North Carolina.