Building Summary

Data last updated on: 4/2/2026     Ownership current as of: 3/30/2026     Tax Year: 2026
REID 157606

PIN # 0759-31-7244

Location Address Property Description
5414 PAGEFORD DR PAGEHURST/PH:01/LT#48 PL:000143-000218
   
Property Owner Owner's Mailing Address
STAR BORROWER SFR5 LP
16220 N SCOTTSDALE RD STE 450
SCOTTSDALE AZ 85254
Parcel
Buildings
Misc Improvements
Land
Deeds
Notes
Sales
Photos
Map
Building Location Address
5414 PAGEFORD DR
Building Description
RESFR-RES-FRM-OR-EQ
Card   of  1
Bldg Type RESIDENTIAL
Units 1
Living Area (SQFT) 2014
Number of Stories 1.00
Style BTS-BI/TRI/SPLT-LEVL
Foundation 06-BASEMENT
Exterior 08-VINYL/ALUMINUM
Const Type
Heating 05-PACKAGE-HEAT/COOL
Air Cond
Plumbing Baths (Full):   3
Baths (Half):   0
Extra Fixtures:   0
Total Plumbing Fixtures:   9 
Bedrooms 4
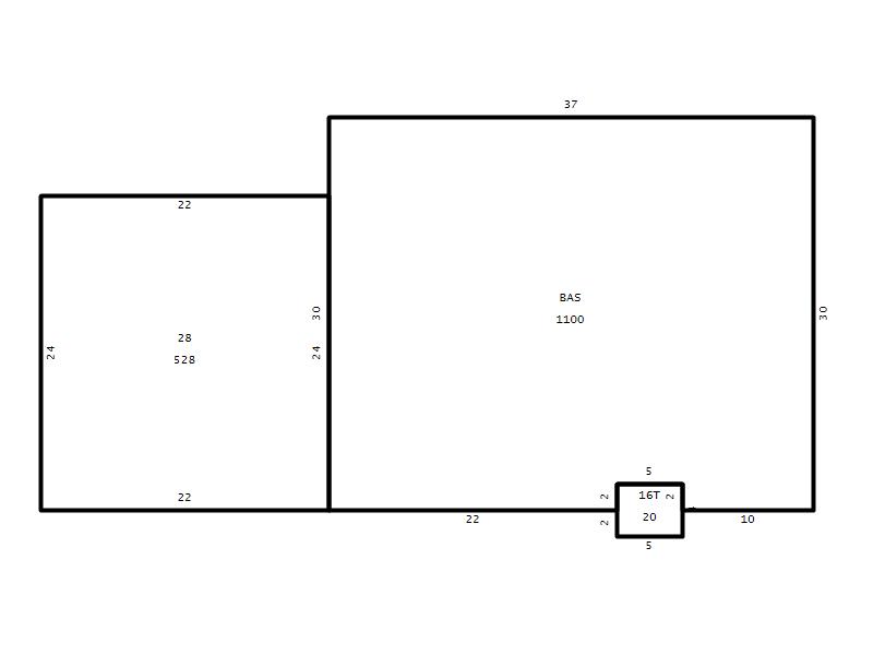
Main Body (SQFT) 1100
Year Built 1999
Additions 5
Effective Year 1999
Remodeled 0
Interior Adj.
Other Features
Building Total & Improvement Details

Grade C 100%
Percentage Complete 100
Total Adjusted Replacement Cost New $315,973
Physical Depreciation (% Bad) 0%
Depreciated Value $243,299
Economic Depreciation (% Bad) 0%
Functional Depreciation (% Bad) 0%
Total Depreciated Value $243,299
Market Area Factor 1.00
Building Value $243,299
Misc Improvements Value
Total Improvement Value $243,299

Assessed Land Value $126,000
   
Assessed Total Value $369,299



Addition Summary 
StoryTypeCodeArea
1.00 Terrace/Raised Patio 16T 20
1.00 Garage 28 528
1.00 Concrete Slab 16B 9
1.00 Finished Basement 14 914
1.00 Concrete Slab 16B 9
 
Other Improvements 
 


Building Sketch
Photograph
Building Sketch Building Photo
(Click sketch for bigger image)




Copyright © 2022 Durham County, North Carolina.