Building Summary

Data last updated on: 3/31/2026     Ownership current as of: 3/26/2026     Tax Year: 2026
REID 157607

PIN # 0759-31-7116

Location Address Property Description
5410 PAGEFORD DR PAGEHURST/PH:01/LT#47 PL:000143-000216
   
Property Owner Owner's Mailing Address
CANALES, TANIA
2912 SPRUCEWOOD DR
DURHAM NC 27707
Parcel
Buildings
Misc Improvements
Land
Deeds
Notes
Sales
Photos
Map
Building Location Address
5410 PAGEFORD DR
Building Description
RESFR-RES-FRM-OR-EQ
Card   of  1
Bldg Type RESIDENTIAL
Units 1
Living Area (SQFT) 2008
Number of Stories 2.00
Style CON-CONVENTIONAL
Foundation 03-CONTINOUS-SLAB
Exterior 08-VINYL/ALUMINUM
Const Type
Heating 05-PACKAGE-HEAT/COOL
Air Cond
Plumbing Baths (Full):   2
Baths (Half):   1
Extra Fixtures:   0
Total Plumbing Fixtures:   8 
Bedrooms 4
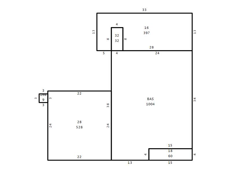
Main Body (SQFT) 1004
Year Built 2000
Additions 6
Effective Year 2000
Remodeled 0
Interior Adj.
Other Features
Building Total & Improvement Details

Grade C 100%
Percentage Complete 100
Total Adjusted Replacement Cost New $352,018
Physical Depreciation (% Bad) 0%
Depreciated Value $271,054
Economic Depreciation (% Bad) 0%
Functional Depreciation (% Bad) 0%
Total Depreciated Value $271,054
Market Area Factor 1.00
Building Value $271,054
Misc Improvements Value
Total Improvement Value $271,054

Assessed Land Value $126,000
   
Assessed Total Value $397,054



Addition Summary 
StoryTypeCodeArea
1.00 Frame Deck 16 397
1.00 Concrete Slab 16B 9
1.00 Covered Porch 18 60
1.00 Garage 28 528
1.00 Storage Utility 32 32
1.00 Res Frame 2Nd Flr FR02 1004
 
Other Improvements 
 


Building Sketch
Photograph
Building Sketch Building Photo
(Click sketch for bigger image)




Copyright © 2022 Durham County, North Carolina.