Building Summary

Data last updated on: 3/31/2026     Ownership current as of: 3/26/2026     Tax Year: 2026
REID 157618

PIN # 0759-30-4551

Location Address Property Description
12 SAMEER CT PAGEHURST/PH:02/LT#36 PL:000145-000151
   
Property Owner Owner's Mailing Address
TRIANGLE HOMES AND REHAB INC
12 SAMEER CT
DURHAM NC 27703
Parcel
Buildings
Misc Improvements
Land
Deeds
Notes
Sales
Photos
Map
Building Location Address
12 SAMEER CT
Building Description
RESFR-RES-FRM-OR-EQ
Card   of  1
Bldg Type RESIDENTIAL
Units 1
Living Area (SQFT) 2076
Number of Stories 2.00
Style CON-CONVENTIONAL
Foundation 04-P-FOOTING/CRWL-SP
Exterior 08-VINYL/ALUMINUM
Const Type
Heating 05-PACKAGE-HEAT/COOL
Air Cond
Plumbing Baths (Full):   2
Baths (Half):   1
Extra Fixtures:   0
Total Plumbing Fixtures:   8 
Bedrooms 4
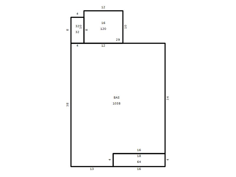
Main Body (SQFT) 1038
Year Built 2001
Additions 4
Effective Year 2001
Remodeled 0
Interior Adj.
Other Features
Building Total & Improvement Details

Grade C 100%
Percentage Complete 100
Total Adjusted Replacement Cost New $339,458
Physical Depreciation (% Bad) 0%
Depreciated Value $264,777
Economic Depreciation (% Bad) 0%
Functional Depreciation (% Bad) 0%
Total Depreciated Value $264,777
Market Area Factor 1.00
Building Value $264,777
Misc Improvements Value
Total Improvement Value $264,777

Assessed Land Value $131,250
   
Assessed Total Value $396,027



Addition Summary 
StoryTypeCodeArea
1.00 Frame Deck 16 120
1.00 Covered Porch 18 64
1.00 Storage Utility 32 32
1.00 Res Frame 2Nd Flr FR02 1038
 
Other Improvements 
 


Building Sketch
Photograph
Building Sketch Building Photo
(Click sketch for bigger image)




Copyright © 2022 Durham County, North Carolina.