Building Summary

Data last updated on: 3/31/2026     Ownership current as of: 3/26/2026     Tax Year: 2026
REID 157637

PIN # 0759-31-6522

Location Address Property Description
5425 PAGEFORD DR PAGEHURST/PH:01/LT#06 PL:000143-000218
   
Property Owner Owner's Mailing Address
HARRILL, SARAH ELAINE;HARRILL, SARAH;COALFLEET, WELLS
5425 PAGEFORD DR
DURHAM NC 27703
Parcel
Buildings
Misc Improvements
Land
Deeds
Notes
Sales
Photos
Map
Building Location Address
5425 PAGEFORD DR
Building Description
RESFR-RES-FRM-OR-EQ
Card   of  1
Bldg Type RESIDENTIAL
Units 1
Living Area (SQFT) 1632
Number of Stories 2.00
Style COL-COLONIAL
Foundation 03-CONTINOUS-SLAB
Exterior 08-VINYL/ALUMINUM
Const Type
Heating 05-PACKAGE-HEAT/COOL
Air Cond
Plumbing Baths (Full):   2
Baths (Half):   1
Extra Fixtures:   0
Total Plumbing Fixtures:   8 
Bedrooms 3
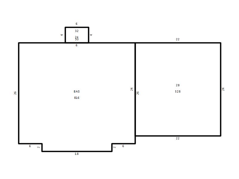
Main Body (SQFT) 816
Year Built 1999
Additions 5
Effective Year 1999
Remodeled 0
Interior Adj.
Other Features
Building Total & Improvement Details

Grade C 100%
Percentage Complete 100
Total Adjusted Replacement Cost New $300,889
Physical Depreciation (% Bad) 0%
Depreciated Value $249,738
Economic Depreciation (% Bad) 0%
Functional Depreciation (% Bad) 0%
Total Depreciated Value $249,738
Market Area Factor 1.00
Building Value $249,738
Misc Improvements Value
Total Improvement Value $249,738

Assessed Land Value $126,000
   
Assessed Total Value $375,738



Addition Summary 
StoryTypeCodeArea
1.00 Garage 28 528
1.00 Storage Utility 32 24
1.00 Res Frame 2Nd Flr FR02 816
1.00 Concrete Slab 16B 100
1.00 Concrete Slab 16B 24
 
Other Improvements 
 


Building Sketch
Photograph
Building Sketch Building Photo
(Click sketch for bigger image)




Copyright © 2022 Durham County, North Carolina.