Building Summary

Data last updated on: 4/2/2026     Ownership current as of: 3/30/2026     Tax Year: 2026
REID 158415

PIN # 0840-36-5584

Location Address Property Description
613 MIDWAY AVE AREYS SPRING PRK/BLK:B/PT LT#04 & PT LT#05 PL:00005B-000190
   
Property Owner Owner's Mailing Address
HOPE INVESTMENT PROPERTIES LLC
1214 JOY RIDGE RD
PLEASANT GARDEN NC 27313
Parcel
Buildings
Misc Improvements
Land
Deeds
Notes
Sales
Photos
Map
Building Location Address
613 MIDWAY AVE
Building Description
RESFR-RES-FRM-OR-EQ
Card   of  1
Bldg Type RESIDENTIAL
Units 1
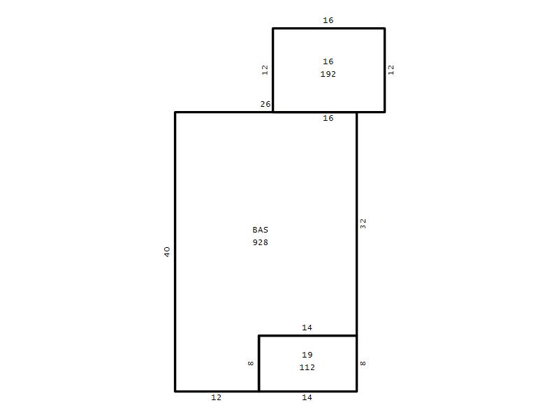
Living Area (SQFT) 928
Number of Stories 1.00
Style RAN-RANCH
Foundation 04-P-FOOTING/CRWL-SP
Exterior 08-VINYL/ALUMINUM
Const Type
Heating 05-PACKAGE-HEAT/COOL
Air Cond
Plumbing Baths (Full):   1
Baths (Half):   0
Extra Fixtures:   0
Total Plumbing Fixtures:   3 
Bedrooms 2
Main Body (SQFT) 928
Year Built 1930
Additions 2
Effective Year 1930
Remodeled 0
Interior Adj.
Other Features
Building Total & Improvement Details

Grade C+5 105%
Percentage Complete 100
Total Adjusted Replacement Cost New $203,939
Physical Depreciation (% Bad) 0%
Depreciated Value $112,166
Economic Depreciation (% Bad) 0%
Functional Depreciation (% Bad) 0%
Total Depreciated Value $112,166
Market Area Factor 1.00
Building Value $112,166
Misc Improvements Value $382
Total Improvement Value $112,548

Assessed Land Value $84,700
   
Assessed Total Value $197,248



Addition Summary 
StoryTypeCodeArea
1.00 Frame Deck 16 192
1.00 Screen Porch 19 112
 
Other Improvements 
UnitsDescriptionItemCodeYear% BadValue
80 SIZE Storage Building 1930 75 382
 


Building Sketch
Photograph
Building Sketch Building Photo
(Click sketch for bigger image)




Copyright © 2022 Durham County, North Carolina.