Building Summary

Data last updated on: 4/2/2026     Ownership current as of: 3/30/2026     Tax Year: 2026
REID 158540

PIN # 0840-77-7901

Location Address Property Description
1108 LADY BANKS DR ROSEWOOD/LT#12 PL:000114-000112
   
Property Owner Owner's Mailing Address
BAF ASSETS 5 LLC
3903 S CONGRESS AVE STE 40298
AUSTIN TX 78704
Parcel
Buildings
Misc Improvements
Land
Deeds
Notes
Sales
Photos
Map
Building Location Address
1108 LADY BANKS DR
Building Description
RESFR-RES-FRM-OR-EQ
Card   of  1
Bldg Type RESIDENTIAL
Units 1
Living Area (SQFT) 1814
Number of Stories 2.00
Style CON-CONVENTIONAL
Foundation 03-CONTINOUS-SLAB
Exterior 08-VINYL/ALUMINUM
Const Type
Heating 05-PACKAGE-HEAT/COOL
Air Cond
Plumbing Baths (Full):   3
Baths (Half):   0
Extra Fixtures:   1
Total Plumbing Fixtures:   10 
Bedrooms 4
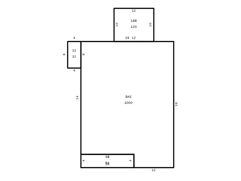
Main Body (SQFT) 1000
Year Built 1998
Additions 4
Effective Year 1998
Remodeled 0
Interior Adj.
Other Features
Building Total & Improvement Details

Grade C+15 115%
Percentage Complete 100
Total Adjusted Replacement Cost New $339,887
Physical Depreciation (% Bad) 0%
Depreciated Value $258,314
Economic Depreciation (% Bad) 0%
Functional Depreciation (% Bad) 0%
Total Depreciated Value $258,314
Market Area Factor 1.00
Building Value $258,314
Misc Improvements Value
Total Improvement Value $258,314

Assessed Land Value $79,800
   
Assessed Total Value $338,114



Addition Summary 
StoryTypeCodeArea
1.00 Concrete Slab 16B 120
1.00 Covered Porch 18 64
1.00 Storage Utility 32 32
1.00 Res Frame 2Nd Flr FR02 814
 
Other Improvements 
 


Building Sketch
Photograph
Building Sketch Building Photo
(Click sketch for bigger image)




Copyright © 2022 Durham County, North Carolina.