Building Summary

Data last updated on: 4/2/2026     Ownership current as of: 3/30/2026     Tax Year: 2026
REID 158554

PIN # 0840-68-7935

Location Address Property Description
3102 FORRESTAL DR LYNN HOLLOW/PH:01/LT#17 PL:000156-000101
   
Property Owner Owner's Mailing Address
2017-1 IH BORROWER L P
PO BOX 4900
SCOTTSDALE AZ 85261
Parcel
Buildings
Misc Improvements
Land
Deeds
Notes
Sales
Photos
Map
Building Location Address
3102 FORRESTAL DR
Building Description
RESFR-RES-FRM-OR-EQ
Card   of  1
Bldg Type RESIDENTIAL
Units 1
Living Area (SQFT) 1784
Number of Stories 2.00
Style CON-CONVENTIONAL
Foundation 03-CONTINOUS-SLAB
Exterior 08-VINYL/ALUMINUM
Const Type
Heating 05-PACKAGE-HEAT/COOL
Air Cond
Plumbing Baths (Full):   1
Baths (Half):   1
Extra Fixtures:   0
Total Plumbing Fixtures:   5 
Bedrooms 3
Main Body (SQFT) 804
Year Built 2003
Additions 5
Effective Year 2003
Remodeled 0
Interior Adj.
Other Features
Building Total & Improvement Details

Grade C+5 105%
Percentage Complete 100
Total Adjusted Replacement Cost New $323,756
Physical Depreciation (% Bad) 0%
Depreciated Value $259,005
Economic Depreciation (% Bad) 0%
Functional Depreciation (% Bad) 0%
Total Depreciated Value $259,005
Market Area Factor 1.00
Building Value $259,005
Misc Improvements Value
Total Improvement Value $259,005

Assessed Land Value $77,700
   
Assessed Total Value $336,705



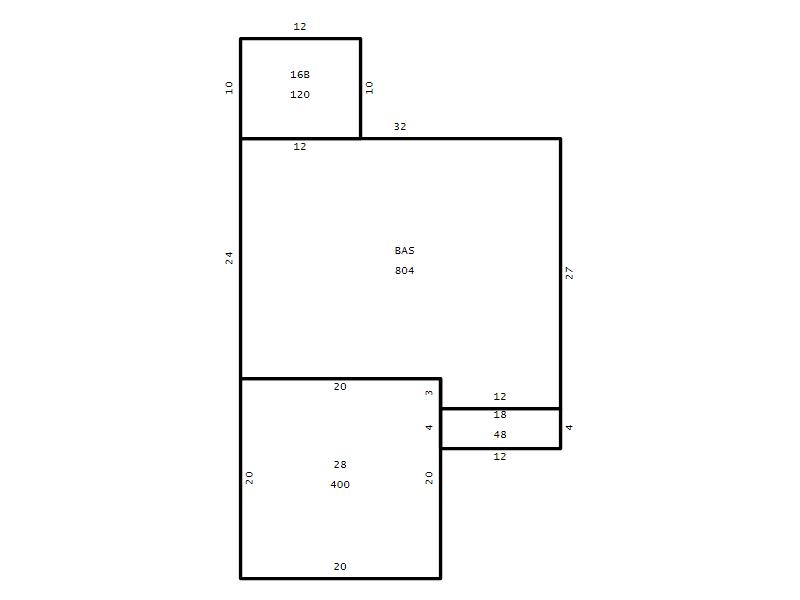
Addition Summary 
StoryTypeCodeArea
1.00 Concrete Slab 16B 120
1.00 Covered Porch 18 48
1.00 Garage 28 400
1.00 Res Frame 2Nd Flr FR02 660
1.00 Res Frm 2Nd Flr Over Garg FR02 320
 
Other Improvements 
 


Building Sketch
Photograph
Building Sketch Building Photo
(Click sketch for bigger image)




Copyright © 2022 Durham County, North Carolina.