Building Summary

Data last updated on: 1/8/2026     Ownership current as of: 12/23/2025     Tax Year: 2026
REID 158651

PIN # 0840-68-7074

Location Address Property Description
1202 KENDALL DR PARK PLACE VILLAGE/PH:02/ LT#086 PL:000117-000192
   
Property Owner Owner's Mailing Address
SILVER, ISMAIL
1202 KENDALL DR
DURHAM NC 27703
Parcel
Buildings
Misc Improvements
Land
Deeds
Notes
Sales
Photos
Map
Building Location Address
1202 KENDALL DR
Building Description
RESFR-RES-FRM-OR-EQ
Card   of  1
Bldg Type RESIDENTIAL
Units 1
Living Area (SQFT) 1410
Number of Stories 1.00
Style RAN-RANCH
Foundation 03-CONTINOUS-SLAB
Exterior 09-HARD-B/CEMENTBRD
Const Type
Heating 05-PACKAGE-HEAT/COOL
Air Cond
Plumbing Baths (Full):   2
Baths (Half):   0
Extra Fixtures:   0
Total Plumbing Fixtures:   6 
Bedrooms 3
Main Body (SQFT) 1410
Year Built 1992
Additions 4
Effective Year 1992
Remodeled 0
Interior Adj.
Other Features
Building Total & Improvement Details

Grade C+10 110%
Percentage Complete 100
Total Adjusted Replacement Cost New $272,890
Physical Depreciation (% Bad) 0%
Depreciated Value $199,210
Economic Depreciation (% Bad) 0%
Functional Depreciation (% Bad) 0%
Total Depreciated Value $199,210
Market Area Factor 1.00
Building Value $199,210
Misc Improvements Value $204
Total Improvement Value $199,414

Assessed Land Value $77,000
   
Assessed Total Value $276,414



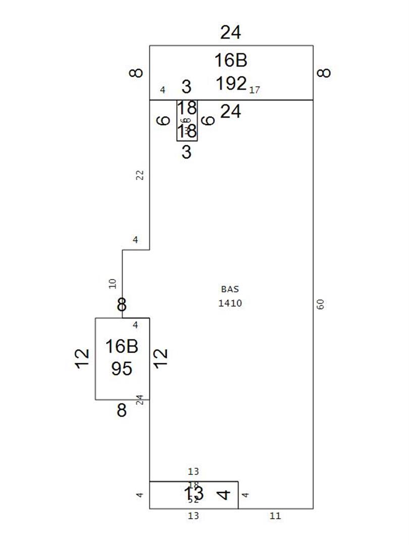
Addition Summary 
StoryTypeCodeArea
1.00 Covered Porch 18 52
1.00 Covered Porch 18 18
1.00 Concrete Slab 16B 192
1.00 Concrete Slab 16B 95
 
Other Improvements 
UnitsDescriptionItemCodeYear% BadValue
80 SIZE Storage Building 1992 75 204
 


Building Sketch
Photograph
Building Sketch Building Photo
(Click sketch for bigger image)




Copyright © 2022 Durham County, North Carolina.