Building Summary

Data last updated on: 4/2/2026     Ownership current as of: 3/30/2026     Tax Year: 2026
REID 158708

PIN # 0841-71-4394

Location Address Property Description
3216 HURSEY ST PROP-POPE CHARLES A/BLK:A /LT#05 PL:000024-000037
   
Property Owner Owner's Mailing Address
KALACH, IRIS
3216 HURSEY ST
DURHAM NC 27703
Parcel
Buildings
Misc Improvements
Land
Deeds
Notes
Sales
Photos
Map
Building Location Address
3216 HURSEY ST
Building Description
RESFR-RES-FRM-OR-EQ
Card   of  1
Bldg Type RESIDENTIAL
Units 1
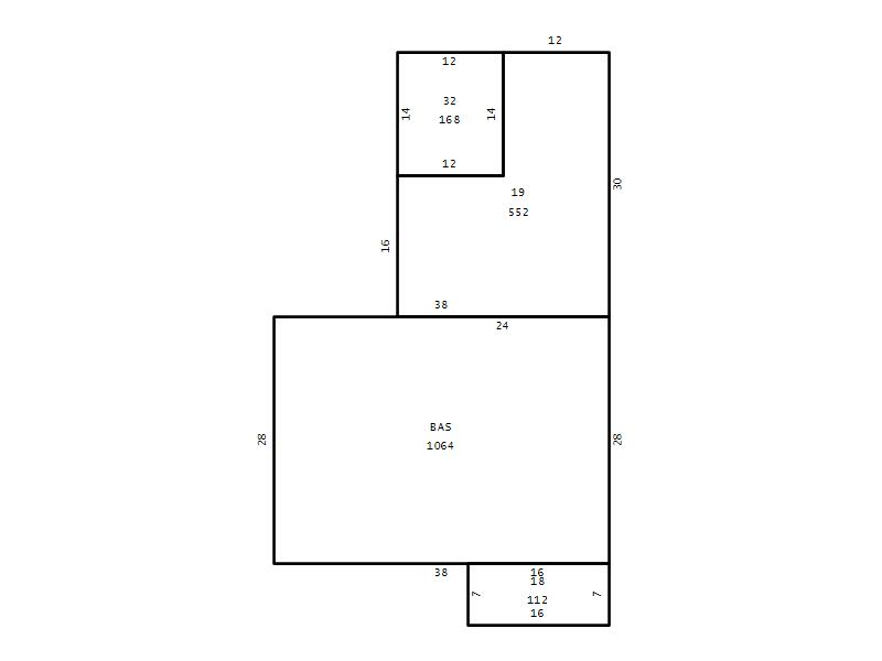
Living Area (SQFT) 1064
Number of Stories 1.00
Style RAN-RANCH
Foundation 04-P-FOOTING/CRWL-SP
Exterior 08-VINYL/ALUMINUM
Const Type
Heating 05-PACKAGE-HEAT/COOL
Air Cond
Plumbing Baths (Full):   1
Baths (Half):   0
Extra Fixtures:   0
Total Plumbing Fixtures:   3 
Bedrooms 2
Main Body (SQFT) 1064
Year Built 1956
Additions 3
Effective Year 1956
Remodeled 0
Interior Adj.
Other Features
Building Total & Improvement Details

Grade C- 95%
Percentage Complete 100
Total Adjusted Replacement Cost New $226,681
Physical Depreciation (% Bad) 0%
Depreciated Value $90,672
Economic Depreciation (% Bad) 0%
Functional Depreciation (% Bad) 0%
Total Depreciated Value $90,672
Market Area Factor 1.00
Building Value $90,672
Misc Improvements Value $852
Total Improvement Value $91,524

Assessed Land Value $108,000
   
Assessed Total Value $199,524



Addition Summary 
StoryTypeCodeArea
1.00 Storage Utility 32 168
1.00 Screen Porch 19 552
1.00 Covered Porch 18 112
 
Other Improvements 
UnitsDescriptionItemCodeYear% BadValue
12x20 DIMENSIONS Prefab Metal Car Shed 1956 50 852
 


Building Sketch
Photograph
Building Sketch Building Photo
(Click sketch for bigger image)




Copyright © 2022 Durham County, North Carolina.