Building Summary

Data last updated on: 4/2/2026     Ownership current as of: 3/30/2026     Tax Year: 2026
REID 158737

PIN # 0841-70-0152

Location Address Property Description
3219 NANTUCKETT AVE HIDDEN HOLLOW/SEC:A/PH:01 /LT#001 PL:000118-000121
   
Property Owner Owner's Mailing Address
BRODALSKI, NOLAN;BOYD, ASHLEY
3219 NANTUCKETT AVE
DURHAM NC 27703
Parcel
Buildings
Misc Improvements
Land
Deeds
Notes
Sales
Photos
Map
Building Location Address
3219 NANTUCKETT AVE
Building Description
RESFR-RES-FRM-OR-EQ
Card   of  1
Bldg Type RESIDENTIAL
Units 1
Living Area (SQFT) 1616
Number of Stories 2.00
Style CON-CONVENTIONAL
Foundation 03-CONTINOUS-SLAB
Exterior 09-HARD-B/CEMENTBRD
Const Type
Heating 05-PACKAGE-HEAT/COOL
Air Cond
Plumbing Baths (Full):   2
Baths (Half):   0
Extra Fixtures:   0
Total Plumbing Fixtures:   6 
Bedrooms 3
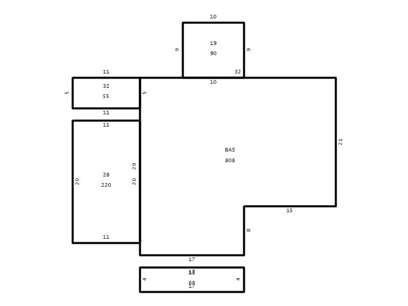
Main Body (SQFT) 808
Year Built 1992
Additions 5
Effective Year 1992
Remodeled 0
Interior Adj.
Other Features
Building Total & Improvement Details

Grade C+10 110%
Percentage Complete 100
Total Adjusted Replacement Cost New $310,889
Physical Depreciation (% Bad) 0%
Depreciated Value $248,711
Economic Depreciation (% Bad) 0%
Functional Depreciation (% Bad) 0%
Total Depreciated Value $248,711
Market Area Factor 1.00
Building Value $248,711
Misc Improvements Value
Total Improvement Value $248,711

Assessed Land Value $86,100
   
Assessed Total Value $334,811



Addition Summary 
StoryTypeCodeArea
1.00 Covered Porch 18 68
1.00 Screen Porch 19 90
1.00 Garage 28 220
1.00 Storage Utility 32 55
1.00 Res Frame 2Nd Flr FR02 808
 
Other Improvements 
 


Building Sketch
Photograph
Building Sketch Building Photo
(Click sketch for bigger image)




Copyright © 2022 Durham County, North Carolina.