Building Summary

Data last updated on: 4/2/2026     Ownership current as of: 3/30/2026     Tax Year: 2026
REID 158745

PIN # 0841-70-6169

Location Address Property Description
3323 NANTUCKETT AVE HIDDEN HOLLOW/SEC:A/PH:01 /LT#009 PL:000118-000121
   
Property Owner Owner's Mailing Address
MILLS, CORLISS
3323 NANTUCKETT AVE
DURHAM NC 27703
Parcel
Buildings
Misc Improvements
Land
Deeds
Notes
Sales
Photos
Map
Building Location Address
3323 NANTUCKETT AVE
Building Description
RESFR-RES-FRM-OR-EQ
Card   of  1
Bldg Type RESIDENTIAL
Units 1
Living Area (SQFT) 1280
Number of Stories 2.00
Style COL-COLONIAL
Foundation 03-CONTINOUS-SLAB
Exterior 09-HARD-B/CEMENTBRD
Const Type
Heating 05-PACKAGE-HEAT/COOL
Air Cond
Plumbing Baths (Full):   2
Baths (Half):   1
Extra Fixtures:   0
Total Plumbing Fixtures:   8 
Bedrooms 3
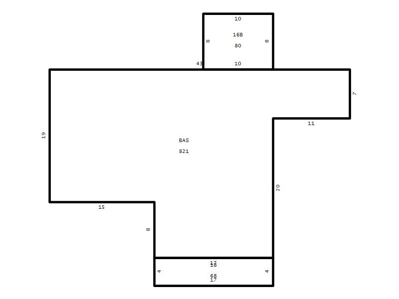
Main Body (SQFT) 821
Year Built 1991
Additions 3
Effective Year 1991
Remodeled 0
Interior Adj.
Other Features
Building Total & Improvement Details

Grade B+ 135%
Percentage Complete 100
Total Adjusted Replacement Cost New $318,900
Physical Depreciation (% Bad) 0%
Depreciated Value $255,120
Economic Depreciation (% Bad) 0%
Functional Depreciation (% Bad) 0%
Total Depreciated Value $255,120
Market Area Factor 1.00
Building Value $255,120
Misc Improvements Value $510
Total Improvement Value $255,630

Assessed Land Value $84,700
   
Assessed Total Value $340,330



Addition Summary 
StoryTypeCodeArea
1.00 Concrete Slab 16B 80
1.00 Covered Porch 18 68
1.00 Res Frame 2Nd Flr FR02 459
 
Other Improvements 
UnitsDescriptionItemCodeYear% BadValue
8x10 DIMENSIONS Storage Building 1991 75 510
 


Building Sketch
Photograph
Building Sketch Building Photo
(Click sketch for bigger image)




Copyright © 2022 Durham County, North Carolina.