Building Summary

Data last updated on: 4/2/2026     Ownership current as of: 3/30/2026     Tax Year: 2026
REID 158749

PIN # 0841-70-8001

Location Address Property Description
3330 NANTUCKETT AVE HIDDEN HOLLOW/SEC:A/PH:01 /LT#013 PL:000118-000121
   
Property Owner Owner's Mailing Address
VIASUS, YVETTE;QUINONES, NICOLE
3330 NANTUCKETT AVE
DURHAM NC 27703
Parcel
Buildings
Misc Improvements
Land
Deeds
Notes
Sales
Photos
Map
Building Location Address
3330 NANTUCKETT AVE
Building Description
RESFR-RES-FRM-OR-EQ
Card   of  1
Bldg Type RESIDENTIAL
Units 1
Living Area (SQFT) 1536
Number of Stories 2.00
Style COL-COLONIAL
Foundation 03-CONTINOUS-SLAB
Exterior 09-HARD-B/CEMENTBRD
Const Type
Heating 05-PACKAGE-HEAT/COOL
Air Cond
Plumbing Baths (Full):   3
Baths (Half):   0
Extra Fixtures:   0
Total Plumbing Fixtures:   9 
Bedrooms 3
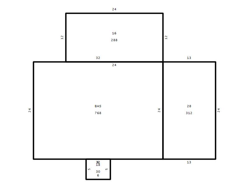
Main Body (SQFT) 768
Year Built 1994
Additions 4
Effective Year 1994
Remodeled 0
Interior Adj.
Other Features
Building Total & Improvement Details

Grade B+ 135%
Percentage Complete 100
Total Adjusted Replacement Cost New $379,472
Physical Depreciation (% Bad) 0%
Depreciated Value $307,372
Economic Depreciation (% Bad) 0%
Functional Depreciation (% Bad) 0%
Total Depreciated Value $307,372
Market Area Factor 1.00
Building Value $307,372
Misc Improvements Value
Total Improvement Value $307,372

Assessed Land Value $86,100
   
Assessed Total Value $393,472



Addition Summary 
StoryTypeCodeArea
1.00 Frame Deck 16 288
1.00 Covered Porch 18 30
1.00 Garage 28 312
1.00 Res Frame 2Nd Flr FR02 768
 
Other Improvements 
 


Building Sketch
Photograph
Building Sketch Building Photo
(Click sketch for bigger image)




Copyright © 2022 Durham County, North Carolina.