Building Summary

Data last updated on: 4/2/2026     Ownership current as of: 3/30/2026     Tax Year: 2026
REID 158793

PIN # 0840-79-8783

Location Address Property Description
3326 REDGATE DR HIDDEN HOLLOW/SEC:A/PH:01 /LT#192 PL:000118-000121
   
Property Owner Owner's Mailing Address
HOME SFR BORROWER IV LLC
PO BOX 4090
SCOTTSDALE AZ 85261
Parcel
Buildings
Misc Improvements
Land
Deeds
Notes
Sales
Photos
Map
Building Location Address
3326 REDGATE DR
Building Description
RESFR-RES-FRM-OR-EQ
Card   of  1
Bldg Type RESIDENTIAL
Units 1
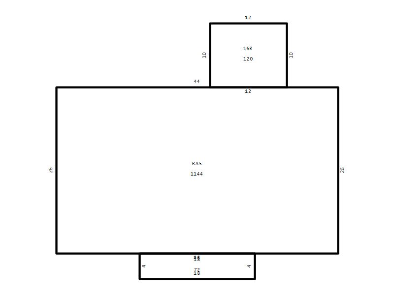
Living Area (SQFT) 1144
Number of Stories 1.00
Style RAN-RANCH
Foundation 03-CONTINOUS-SLAB
Exterior 09-HARD-B/CEMENTBRD
Const Type
Heating 06-HEAT-PUMP
Air Cond
Plumbing Baths (Full):   2
Baths (Half):   0
Extra Fixtures:   0
Total Plumbing Fixtures:   6 
Bedrooms 3
Main Body (SQFT) 1144
Year Built 1992
Additions 2
Effective Year 1992
Remodeled 0
Interior Adj.
Other Features
Building Total & Improvement Details

Grade C+15 115%
Percentage Complete 100
Total Adjusted Replacement Cost New $240,706
Physical Depreciation (% Bad) 0%
Depreciated Value $192,565
Economic Depreciation (% Bad) 0%
Functional Depreciation (% Bad) 0%
Total Depreciated Value $192,565
Market Area Factor 1.00
Building Value $192,565
Misc Improvements Value $510
Total Improvement Value $193,075

Assessed Land Value $84,700
   
Assessed Total Value $277,775



Addition Summary 
StoryTypeCodeArea
1.00 Concrete Slab 16B 120
1.00 Covered Porch 18 72
 
Other Improvements 
UnitsDescriptionItemCodeYear% BadValue
8x10 DIMENSIONS Storage Building 1992 75 510
 


Building Sketch
Photograph
Building Sketch Building Photo
(Click sketch for bigger image)




Copyright © 2022 Durham County, North Carolina.