Building Summary

Data last updated on: 4/2/2026     Ownership current as of: 3/30/2026     Tax Year: 2026
REID 158800

PIN # 0840-89-5470

Location Address Property Description
3405 GIBSON RD HIDDEN HOLLOW/PH:01/SEC:B /LT#70 PL:000127-000099
   
Property Owner Owner's Mailing Address
TYREE, KRISTEN;DAVIS, CASSIDY
3405 GIBSON RD
DURHAM NC 27703
Parcel
Buildings
Misc Improvements
Land
Deeds
Notes
Sales
Photos
Map
Building Location Address
3405 GIBSON RD
Building Description
RESFR-RES-FRM-OR-EQ
Card   of  1
Bldg Type RESIDENTIAL
Units 1
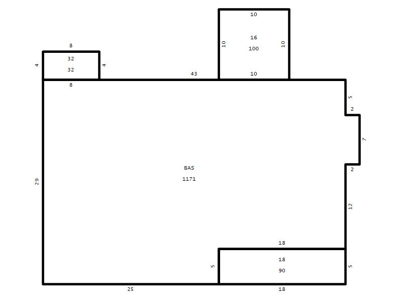
Living Area (SQFT) 1171
Number of Stories 1.00
Style RAN-RANCH
Foundation 04-P-FOOTING/CRWL-SP
Exterior 08-VINYL/ALUMINUM
Const Type
Heating 05-PACKAGE-HEAT/COOL
Air Cond
Plumbing Baths (Full):   2
Baths (Half):   0
Extra Fixtures:   0
Total Plumbing Fixtures:   6 
Bedrooms 3
Main Body (SQFT) 1171
Year Built 1992
Additions 3
Effective Year 1992
Remodeled 0
Interior Adj.
Other Features
Building Total & Improvement Details

Grade C+20 120%
Percentage Complete 100
Total Adjusted Replacement Cost New $278,486
Physical Depreciation (% Bad) 0%
Depreciated Value $264,562
Economic Depreciation (% Bad) 0%
Functional Depreciation (% Bad) 0%
Total Depreciated Value $264,562
Market Area Factor 1.00
Building Value $264,562
Misc Improvements Value
Total Improvement Value $264,562

Assessed Land Value $83,300
   
Assessed Total Value $347,862



Addition Summary 
StoryTypeCodeArea
1.00 Frame Deck 16 100
1.00 Covered Porch 18 90
1.00 Storage Utility 32 32
 
Other Improvements 
 


Building Sketch
Photograph
Building Sketch Building Photo
(Click sketch for bigger image)




Copyright © 2022 Durham County, North Carolina.