Building Summary

Data last updated on: 4/2/2026     Ownership current as of: 3/30/2026     Tax Year: 2026
REID 158833

PIN # 0841-80-8115

Location Address Property Description
839 RIVERBARK LN HIDDEN HOLLOW/PH:01/SEC:B /LT#55 PL:000127-000099
   
Property Owner Owner's Mailing Address
SCARLETT IVY REALTY LLC
37 N RIDGE RD
OLD GREENWICH CT 06870
Parcel
Buildings
Misc Improvements
Land
Deeds
Notes
Sales
Photos
Map
Building Location Address
839 RIVERBARK LN
Building Description
RESFR-RES-FRM-OR-EQ
Card   of  1
Bldg Type RESIDENTIAL
Units 1
Living Area (SQFT) 1024
Number of Stories 1.00
Style RAN-RANCH
Foundation 04-P-FOOTING/CRWL-SP
Exterior 08-VINYL/ALUMINUM
Const Type
Heating 05-PACKAGE-HEAT/COOL
Air Cond
Plumbing Baths (Full):   2
Baths (Half):   0
Extra Fixtures:   0
Total Plumbing Fixtures:   6 
Bedrooms 3
Main Body (SQFT) 1024
Year Built 1993
Additions 3
Effective Year 1993
Remodeled 0
Interior Adj.
Other Features
Building Total & Improvement Details

Grade C 100%
Percentage Complete 100
Total Adjusted Replacement Cost New $217,735
Physical Depreciation (% Bad) 0%
Depreciated Value $106,690
Economic Depreciation (% Bad) 0%
Functional Depreciation (% Bad) 0%
Total Depreciated Value $106,690
Market Area Factor 1.00
Building Value $106,690
Misc Improvements Value
Total Improvement Value $106,690

Assessed Land Value $83,300
   
Assessed Total Value $189,990



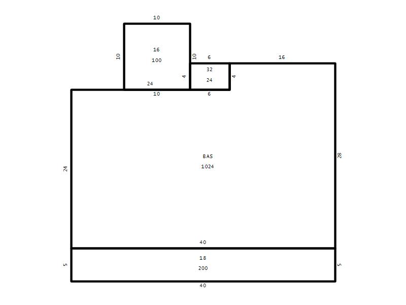
Addition Summary 
StoryTypeCodeArea
1.00 Frame Deck 16 100
1.00 Covered Porch 18 200
1.00 Storage Utility 32 24
 
Other Improvements 
 


Building Sketch
Photograph
Building Sketch Building Photo
(Click sketch for bigger image)




Copyright © 2022 Durham County, North Carolina.