Building Summary

Data last updated on: 4/2/2026     Ownership current as of: 3/30/2026     Tax Year: 2026
REID 158834

PIN # 0841-80-9105

Location Address Property Description
841 RIVERBARK LN HIDDEN HOLLOW/PH:01/SEC:B /LT#56 PL:000127-000099
   
Property Owner Owner's Mailing Address
ORELLANA, LUIS ALEXANDER LOPEZ;SERRANO, IRIS LIZETH VELASQUEZ
841 RIVERBARK LN
DURHAM NC 27703
Parcel
Buildings
Misc Improvements
Land
Deeds
Notes
Sales
Photos
Map
Building Location Address
841 RIVERBARK LN
Building Description
RESFR-RES-FRM-OR-EQ
Card   of  1
Bldg Type RESIDENTIAL
Units 1
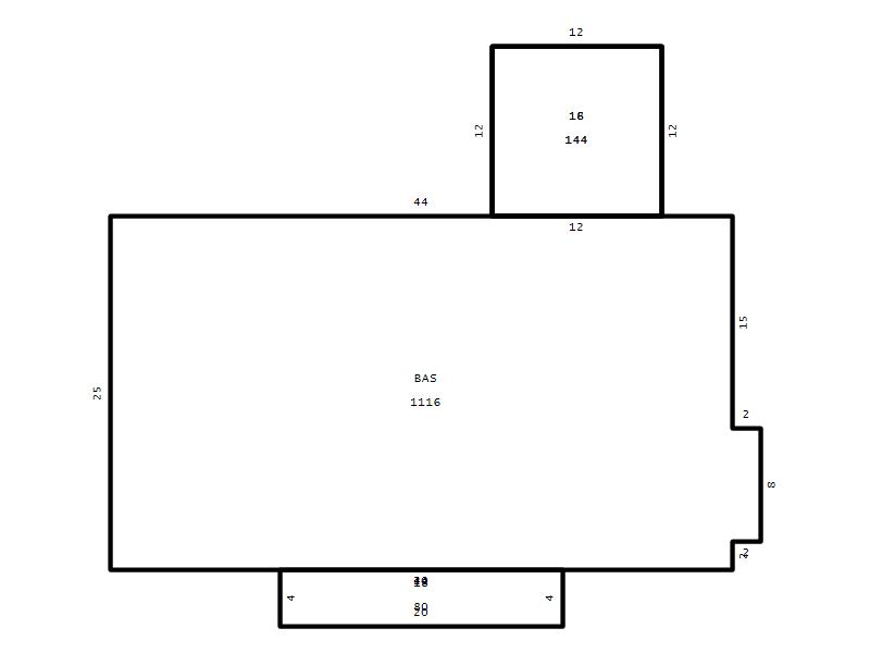
Living Area (SQFT) 1116
Number of Stories 1.00
Style RAN-RANCH
Foundation 06-BASEMENT
Exterior 09-HARD-B/CEMENTBRD
Const Type
Heating 05-PACKAGE-HEAT/COOL
Air Cond
Plumbing Baths (Full):   2
Baths (Half):   0
Extra Fixtures:   0
Total Plumbing Fixtures:   6 
Bedrooms 3
Main Body (SQFT) 1116
Year Built 1994
Additions 4
Effective Year 1994
Remodeled 0
Interior Adj.
Other Features
Building Total & Improvement Details

Grade C 100%
Percentage Complete 100
Total Adjusted Replacement Cost New $263,957
Physical Depreciation (% Bad) 0%
Depreciated Value $195,328
Economic Depreciation (% Bad) 0%
Functional Depreciation (% Bad) 0%
Total Depreciated Value $195,328
Market Area Factor 1.00
Building Value $195,328
Misc Improvements Value $624
Total Improvement Value $195,952

Assessed Land Value $86,100
   
Assessed Total Value $282,052



Addition Summary 
StoryTypeCodeArea
1.00 Frame Deck 16 144
1.00 Covered Porch 18 80
1.00 Covered Porch 18 144
1.00 Unfinished Basement 10 1100
 
Other Improvements 
UnitsDescriptionItemCodeYear% BadValue
10x10 DIMENSIONS Storage Building 1994 75 624
 


Building Sketch
Photograph
Building Sketch Building Photo
(Click sketch for bigger image)




Copyright © 2022 Durham County, North Carolina.