Building Summary

Data last updated on: 4/2/2026     Ownership current as of: 3/30/2026     Tax Year: 2026
REID 159082

PIN # 0851-15-0569

Location Address Property Description
604 CHADBOURNE DR GREYCLIFF/PH:01/LT#108 PL:000129-000190
   
Property Owner Owner's Mailing Address
HARRIS, SHARON;HARRIS, NATHAN
604 CHADBOURNE DR
DURHAM NC 27703
Parcel
Buildings
Misc Improvements
Land
Deeds
Notes
Sales
Photos
Map
Building Location Address
604 CHADBOURNE DR
Building Description
RESFR-RES-FRM-OR-EQ
Card   of  1
Bldg Type RESIDENTIAL
Units 1
Living Area (SQFT) 2124
Number of Stories 2.00
Style CON-CONVENTIONAL
Foundation 04-P-FOOTING/CRWL-SP
Exterior 09-HARD-B/CEMENTBRD
Const Type
Heating 05-PACKAGE-HEAT/COOL
Air Cond
Plumbing Baths (Full):   2
Baths (Half):   1
Extra Fixtures:   0
Total Plumbing Fixtures:   8 
Bedrooms 3
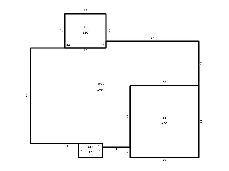
Main Body (SQFT) 1094
Year Built 1993
Additions 5
Effective Year 1993
Remodeled 0
Interior Adj.
Other Features
Building Total & Improvement Details

Grade B+10 130%
Percentage Complete 100
Total Adjusted Replacement Cost New $471,842
Physical Depreciation (% Bad) 0%
Depreciated Value $349,163
Economic Depreciation (% Bad) 0%
Functional Depreciation (% Bad) 0%
Total Depreciated Value $349,163
Market Area Factor 1.00
Building Value $349,163
Misc Improvements Value
Total Improvement Value $349,163

Assessed Land Value $58,486
   
Assessed Total Value $407,649



Addition Summary 
StoryTypeCodeArea
1.00 Frame Deck 16 120
1.00 Terrace/Raised Patio 16T 28
1.00 Garage 28 420
1.00 Res Frame 2Nd Flr FR02 820
1.00 Res Frm 2Nd Flr Over Garg FR02 210
 
Other Improvements 
 


Building Sketch
Photograph
Building Sketch Building Photo
(Click sketch for bigger image)




Copyright © 2022 Durham County, North Carolina.