Building Summary

Data last updated on: 4/1/2026     Ownership current as of: 3/27/2026     Tax Year: 2026
REID 105971

PIN # 0822-95-0668

Location Address Property Description
1617 DEXTER ST PROP-HENLEY E M/PROP-WILL ARD HOUSING CORP/LT#B PL:000020-000117
   
Property Owner Owner's Mailing Address
WRIGHT, CHRISTOPHER
1617 DEXTER ST
DURHAM NC 27701

Value subject to change, property assessment under review

Parcel
Buildings
Misc Improvements
Land
Deeds
Notes
Sales
Photos
Map
Building Location Address
1617 DEXTER ST
Building Description
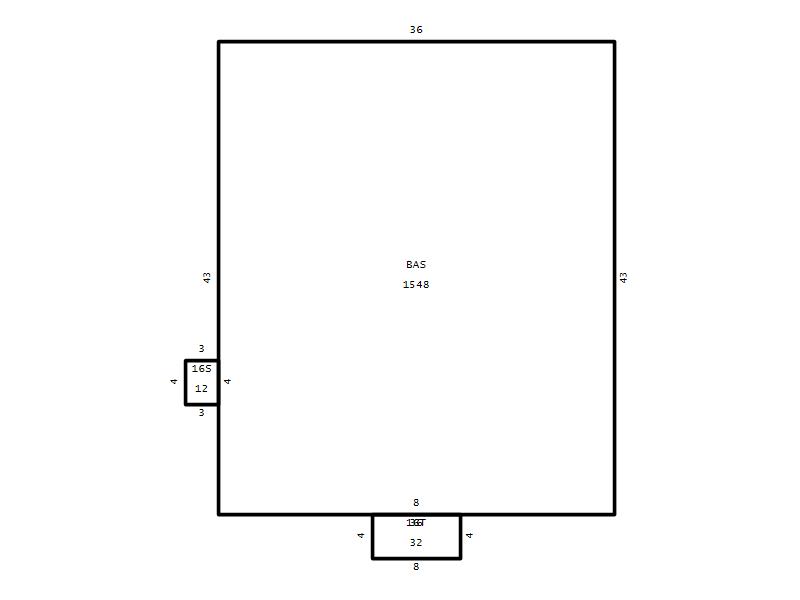
MULFR-BLT-2/3-MLT-FR
Card   of  1
Bldg Type RESIDENTIAL
Units 1
Living Area (SQFT) 1548
Number of Stories 1.00
Style SEM-S-DTCH-VERT-SPLT
Foundation 04-P-FOOTING/CRWL-SP
Exterior 08-VINYL/ALUMINUM
Const Type
Heating 01-FLR/WALL-FURNACE
Air Cond
Plumbing Baths (Full):   2
Baths (Half):   0
Extra Fixtures:   0
Total Plumbing Fixtures:   6 
Bedrooms 4
Main Body (SQFT) 1548
Year Built 1949
Additions 2
Effective Year 1949
Remodeled 0
Interior Adj.
Other Features
Building Total & Improvement Details

Grade C-10 90%
Percentage Complete 100
Total Adjusted Replacement Cost New
Physical Depreciation (% Bad) 0%
Depreciated Value
Economic Depreciation (% Bad) 0%
Functional Depreciation (% Bad) 0%
Total Depreciated Value
Market Area Factor 1.00
Building Value
Misc Improvements Value
Total Improvement Value

Assessed Land Value
   
Assessed Total Value



Addition Summary 
StoryTypeCodeArea
1.00 Stoop 16S 12
1.00 Terrace/Raised Patio 16T 32
 
Other Improvements 
 


Building Sketch
Photograph
Building Sketch Building Photo
(Click sketch for bigger image)




Copyright © 2022 Durham County, North Carolina.