Building Summary

Data last updated on: 4/1/2026     Ownership current as of: 3/27/2026     Tax Year: 2026
REID 105993

PIN # 0822-95-2106

Location Address Property Description
630 W CLUB BLVD PROP-HENLEY E M/BLK:D/LT# 09A-10AB PL:00006B-000156
   
Property Owner Owner's Mailing Address
HOLCOMB, CAROLINE;DIXON, NATHAN
630 W CLUB BLVD
DURHAM NC 27701
Parcel
Buildings
Misc Improvements
Land
Deeds
Notes
Sales
Photos
Map
Building Location Address
630 W CLUB BLVD
Building Description
RESMS-RES-MS-OR-EQ
Card   of  1
Bldg Type RESIDENTIAL
Units 1
Living Area (SQFT) 1790
Number of Stories 2.00
Style CAP-CAPE-COD
Foundation 04-P-FOOTING/CRWL-SP
Exterior 02-BRICK
Const Type
Heating 05-PACKAGE-HEAT/COOL
Air Cond
Plumbing Baths (Full):   2
Baths (Half):   0
Extra Fixtures:   0
Total Plumbing Fixtures:   6 
Bedrooms 5
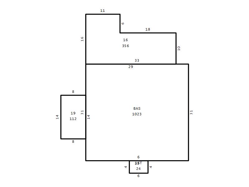
Main Body (SQFT) 1023
Year Built 1949
Additions 4
Effective Year 1949
Remodeled 0
Interior Adj.
Other Features
Building Total & Improvement Details

Grade B-10 110%
Percentage Complete 100
Total Adjusted Replacement Cost New $352,033
Physical Depreciation (% Bad) 0%
Depreciated Value $264,025
Economic Depreciation (% Bad) 0%
Functional Depreciation (% Bad) 0%
Total Depreciated Value $264,025
Market Area Factor 1.00
Building Value $264,025
Misc Improvements Value $320
Total Improvement Value $264,345

Assessed Land Value $201,600
   
Assessed Total Value $465,945



Addition Summary 
StoryTypeCodeArea
1.00 Frame Deck 16 356
1.00 Terrace/Raised Patio 16T 24
1.00 Screen Porch 19 112
1.00 Res Mas 2Nd Flr MS02 767
 
Other Improvements 
UnitsDescriptionItemCodeYear% BadValue
3x5 DIMENSIONS Patio 1949 0 320
 


Building Sketch
Photograph
Building Sketch Building Photo
(Click sketch for bigger image)




Copyright © 2022 Durham County, North Carolina.