Building Summary

Data last updated on: 3/13/2026     Ownership current as of: 3/9/2026     Tax Year: 2026
REID 159835

PIN # 0833-91-4233

Location Address Property Description
1435 MAPLEWOOD DR PROP-WRIGHT R H/BLK:E/LT# 26 PL:000015-000041
   
Property Owner Owner's Mailing Address
MACLEOD, NICHOLAS HEXTER-PETRIE
1435 MAPLEWOOD DR
DURHAM NC 27704
Parcel
Buildings
Misc Improvements
Land
Deeds
Notes
Sales
Photos
Map
Building Location Address
1435 MAPLEWOOD DR
Building Description
RESFR-RES-FRM-OR-EQ
Card   of  1
Bldg Type RESIDENTIAL
Units 1
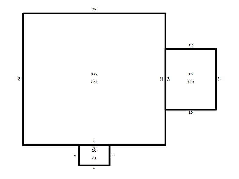
Living Area (SQFT) 728
Number of Stories 1.00
Style RAN-RANCH
Foundation 04-P-FOOTING/CRWL-SP
Exterior 08-VINYL/ALUMINUM
Const Type
Heating 01-FLR/WALL-FURNACE
Air Cond
Plumbing Baths (Full):   1
Baths (Half):   0
Extra Fixtures:   0
Total Plumbing Fixtures:   3 
Bedrooms 2
Main Body (SQFT) 728
Year Built 1967
Additions 2
Effective Year 1967
Remodeled 0
Interior Adj.
Other Features
Building Total & Improvement Details

Grade C- 95%
Percentage Complete 100
Total Adjusted Replacement Cost New $154,578
Physical Depreciation (% Bad) 0%
Depreciated Value $125,208
Economic Depreciation (% Bad) 0%
Functional Depreciation (% Bad) 0%
Total Depreciated Value $125,208
Market Area Factor 1.00
Building Value $125,208
Misc Improvements Value
Total Improvement Value $125,208

Assessed Land Value $80,000
   
Assessed Total Value $205,208



Addition Summary 
StoryTypeCodeArea
1.00 Frame Deck 16 120
1.00 Frame Deck 16 24
 
Other Improvements 
 


Building Sketch
Photograph
Building Sketch Building Photo
(Click sketch for bigger image)




Copyright © 2022 Durham County, North Carolina.