Building Summary

Data last updated on: 3/13/2026     Ownership current as of: 3/9/2026     Tax Year: 2026
REID 159842

PIN # 0833-91-5507

Location Address Property Description
1465 MAPLEWOOD DR PROP-WRIGHT R H/BLK:E/LT# 13 PT PL:000015-000041
   
Property Owner Owner's Mailing Address
BOMAMI REAL ESTATE LLC
5304 BARBEE RD
DURHAM NC 27713
Parcel
Buildings
Misc Improvements
Land
Deeds
Notes
Sales
Photos
Map
Building Location Address
1465 MAPLEWOOD DR
Building Description
RESFR-RES-FRM-OR-EQ
Card   of  1
Bldg Type RESIDENTIAL
Units 1
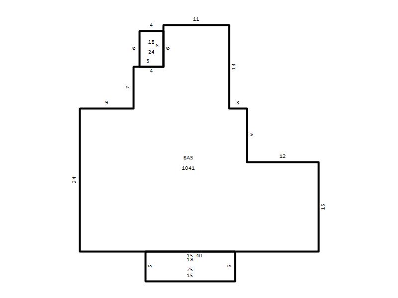
Living Area (SQFT) 1041
Number of Stories 1.00
Style RAN-RANCH
Foundation 04-P-FOOTING/CRWL-SP
Exterior 08-VINYL/ALUMINUM
Const Type
Heating 05-PACKAGE-HEAT/COOL
Air Cond
Plumbing Baths (Full):   1
Baths (Half):   0
Extra Fixtures:   0
Total Plumbing Fixtures:   3 
Bedrooms 4
Main Body (SQFT) 1041
Year Built 1958
Additions 2
Effective Year 1958
Remodeled 0
Interior Adj.
Other Features
Building Total & Improvement Details

Grade C- 95%
Percentage Complete 100
Total Adjusted Replacement Cost New $196,612
Physical Depreciation (% Bad) 0%
Depreciated Value $78,645
Economic Depreciation (% Bad) 0%
Functional Depreciation (% Bad) 0%
Total Depreciated Value $78,645
Market Area Factor 1.00
Building Value $78,645
Misc Improvements Value $177
Total Improvement Value $78,822

Assessed Land Value $79,375
   
Assessed Total Value $158,197



Addition Summary 
StoryTypeCodeArea
1.00 Covered Porch 18 24
1.00 Covered Porch 18 75
 
Other Improvements 
UnitsDescriptionItemCodeYear% BadValue
8x13 DIMENSIONS Shed (Open Pole) 1990 75 177
 


Building Sketch
Photograph
Building Sketch Building Photo
(Click sketch for bigger image)




Copyright © 2022 Durham County, North Carolina.