Building Summary

Data last updated on: 3/13/2026     Ownership current as of: 3/9/2026     Tax Year: 2026
REID 159866

PIN # 0833-82-5221

Location Address Property Description
2906 APOLLO ST LANDMARK/LT#02 PL:000102-000100
   
Property Owner Owner's Mailing Address
HERNANDEZ, ANDRES GARCIA
908 E CLUB BLVD
DURHAM NC 27704
Parcel
Buildings
Misc Improvements
Land
Deeds
Notes
Sales
Photos
Map
Building Location Address
2906 APOLLO ST
Building Description
RESFR-RES-FRM-OR-EQ
Card   of  1
Bldg Type RESIDENTIAL
Units 1
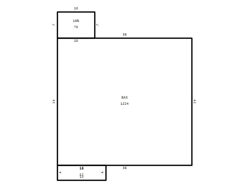
Living Area (SQFT) 1224
Number of Stories 1.00
Style RAN-RANCH
Foundation 03-CONTINOUS-SLAB
Exterior 01-WOOD-PANEL
Const Type
Heating 05-PACKAGE-HEAT/COOL
Air Cond
Plumbing Baths (Full):   2
Baths (Half):   0
Extra Fixtures:   0
Total Plumbing Fixtures:   6 
Bedrooms 3
Main Body (SQFT) 1224
Year Built 1989
Additions 2
Effective Year 1989
Remodeled 0
Interior Adj.
Other Features
Building Total & Improvement Details

Grade C- 95%
Percentage Complete 100
Total Adjusted Replacement Cost New $208,953
Physical Depreciation (% Bad) 0%
Depreciated Value $165,073
Economic Depreciation (% Bad) 0%
Functional Depreciation (% Bad) 0%
Total Depreciated Value $165,073
Market Area Factor 1.00
Building Value $165,073
Misc Improvements Value $1,498
Total Improvement Value $166,571

Assessed Land Value $71,250
   
Assessed Total Value $237,821



Addition Summary 
StoryTypeCodeArea
1.00 Concrete Slab 16B 70
1.00 Covered Porch 18 52
 
Other Improvements 
UnitsDescriptionItemCodeYear% BadValue
10x12 DIMENSIONS Deck 1989 60 1401
7x8 DIMENSIONS Shed (Open Pole) 1989 75 97
 


Building Sketch
Photograph
Building Sketch Building Photo
(Click sketch for bigger image)




Copyright © 2022 Durham County, North Carolina.