Building Summary

Data last updated on: 4/2/2026     Ownership current as of: 3/30/2026     Tax Year: 2026
REID 160053

PIN # 0833-82-1585

Location Address Property Description
3108 DEARBORN DR LAWNDALE ACRES/BLK:B/LT#1 3 PL:000022-000080
   
Property Owner Owner's Mailing Address
BAF ASSETS 5 LLC
3903 S CONGRESS AVE STE 40298
AUSTIN TX 78704
Parcel
Buildings
Misc Improvements
Land
Deeds
Notes
Sales
Photos
Map
Building Location Address
3108 DEARBORN DR
Building Description
RESFR-RES-FRM-OR-EQ
Card   of  1
Bldg Type RESIDENTIAL
Units 1
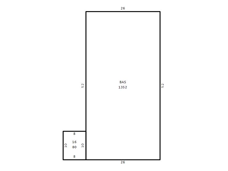
Living Area (SQFT) 1352
Number of Stories 1.00
Style RAN-RANCH
Foundation 03-CONTINOUS-SLAB
Exterior 08-VINYL/ALUMINUM
Const Type
Heating 05-PACKAGE-HEAT/COOL
Air Cond
Plumbing Baths (Full):   1
Baths (Half):   0
Extra Fixtures:   0
Total Plumbing Fixtures:   3 
Bedrooms 3
Main Body (SQFT) 1352
Year Built 1974
Additions 1
Effective Year 1974
Remodeled 0
Interior Adj.
Other Features
Building Total & Improvement Details

Grade C- 95%
Percentage Complete 100
Total Adjusted Replacement Cost New $216,488
Physical Depreciation (% Bad) 0%
Depreciated Value $181,850
Economic Depreciation (% Bad) 0%
Functional Depreciation (% Bad) 0%
Total Depreciated Value $181,850
Market Area Factor 1.00
Building Value $181,850
Misc Improvements Value
Total Improvement Value $181,850

Assessed Land Value $73,125
   
Assessed Total Value $254,975



Addition Summary 
StoryTypeCodeArea
1.00 Frame Deck 16 80
 
Other Improvements 
 


Building Sketch
Photograph
Building Sketch Building Photo
(Click sketch for bigger image)




Copyright © 2022 Durham County, North Carolina.